Если цена в объявлении изменится, мы сразу сообщим вам об этом на электронную почту.
Нажимая «Подписаться», вы соглашаетесь с правилами.
продам 4-к, Ивана Франко, 638 437 940 ₽
12 дек
Дата публикации объявления
Обн. сегодня
Дата обновления объявления
2
Количество просмотров (+ просмотры за сегодня)
Спецпредложение
Турбо x8
346 600 ₽/м²
Чистая продажа
Термин "Чистая продажа" означает, что в квартире никто не прописан или
есть куда выписаться и вывезти вещи. Это лучший вариант для покупателя.
Вероятность срыва сделки минимальна.
Квартира
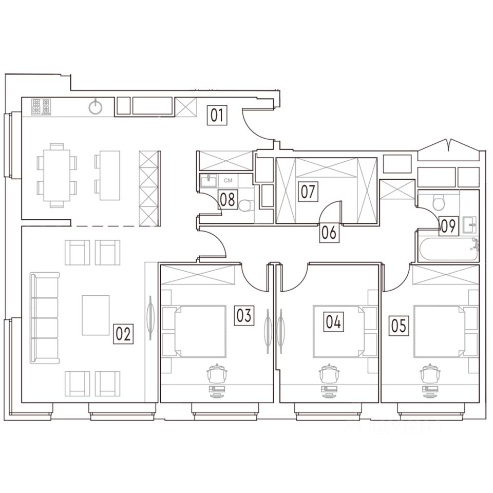
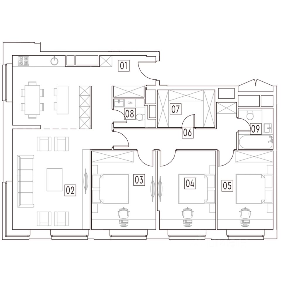
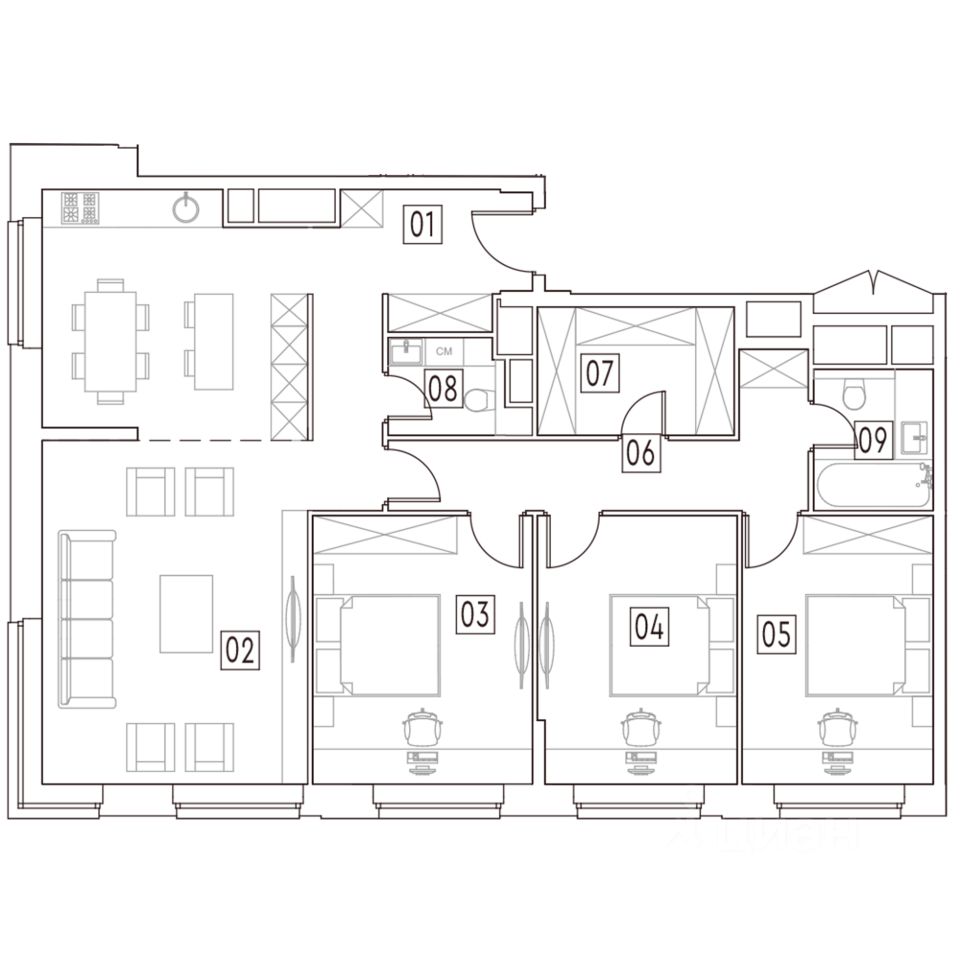
Общая площадь110,9 м2
Жилая площадь78,3 м2
Кухня27,6 м2
Тип собственностисвидетельство о праве собственности
Продаются 4-к апартаменты площадью 110.9 кв.м. на 11-м этаже 29 этажного дома в ''MAINSTREET'' от ГК ОСНОВА.
В комплексе запроектировано 562 апартамента разнообразных площадей и планировок — от ''молодежных'' студий до роскошных четырехкомнатных апартаментов. Все они отличаются ощущением наполненного светом и воздухом пространства благодаря большим окнам, рациональным планировкам, возможности объединения соседних помещений или выделения необходимых функциональных зон.
По замыслу авторов архитектурной концепции, которая была разработана в мастерской ''Сергей Киселев и партнеры'', комплекс MainStreet будет своеобразной доминантой района, ярко выделяющейся на фоне окружения.
Проект включает в себя четыре секции переменной высоты на 9, 12, 15, 29 этажей.
Продаются 4-к апартаменты площадью 110.9 кв.м. на 11-м этаже 29 этажного дома в ''MAINSTREET'' от ГК ОСНОВА.
В комплексе запроектировано 562 апартамента разнообразных площадей и планировок — от ''молодежных'' студий до роскошных четырехкомнатных апартаментов. Все они отличаются ощущением наполненного светом и воздухом пространства благодаря большим окнам, рациональным планировкам, возможности объединения соседних помещений или выделения необходимых функциональных зон.
По замыслу авторов архитектурной концепции, которая была разработана в мастерской ''Сергей Киселев и партнеры'', комплекс MainStreet будет своеобразной доминантой района, ярко выделяющейся на фоне окружения.
Проект включает в себя четыре секции переменной высоты на 9, 12, 15, 29 этажей. Комплекс композиционно сочетается с уже действующим расположенным рядом 20-этажным бизнес-центром. Для каждого корпуса выбирается свой цвет из мягкой, приятной глазу гаммы, от светло-серого до густого кирпичного. Для автомобилей есть подземный двухуровневый паркинг, рассчитанный на 236 машиномест. Попасть в него можно на лифте со своего этажа.
Всех, кто заходит в дом, встречает просторное лобби. Посетители и жители сразу попадают в домашнюю атмосферу.