Термин "Чистая продажа" означает, что в квартире никто не прописан или
есть куда выписаться и вывезти вещи. Это лучший вариант для покупателя.
Вероятность срыва сделки минимальна.
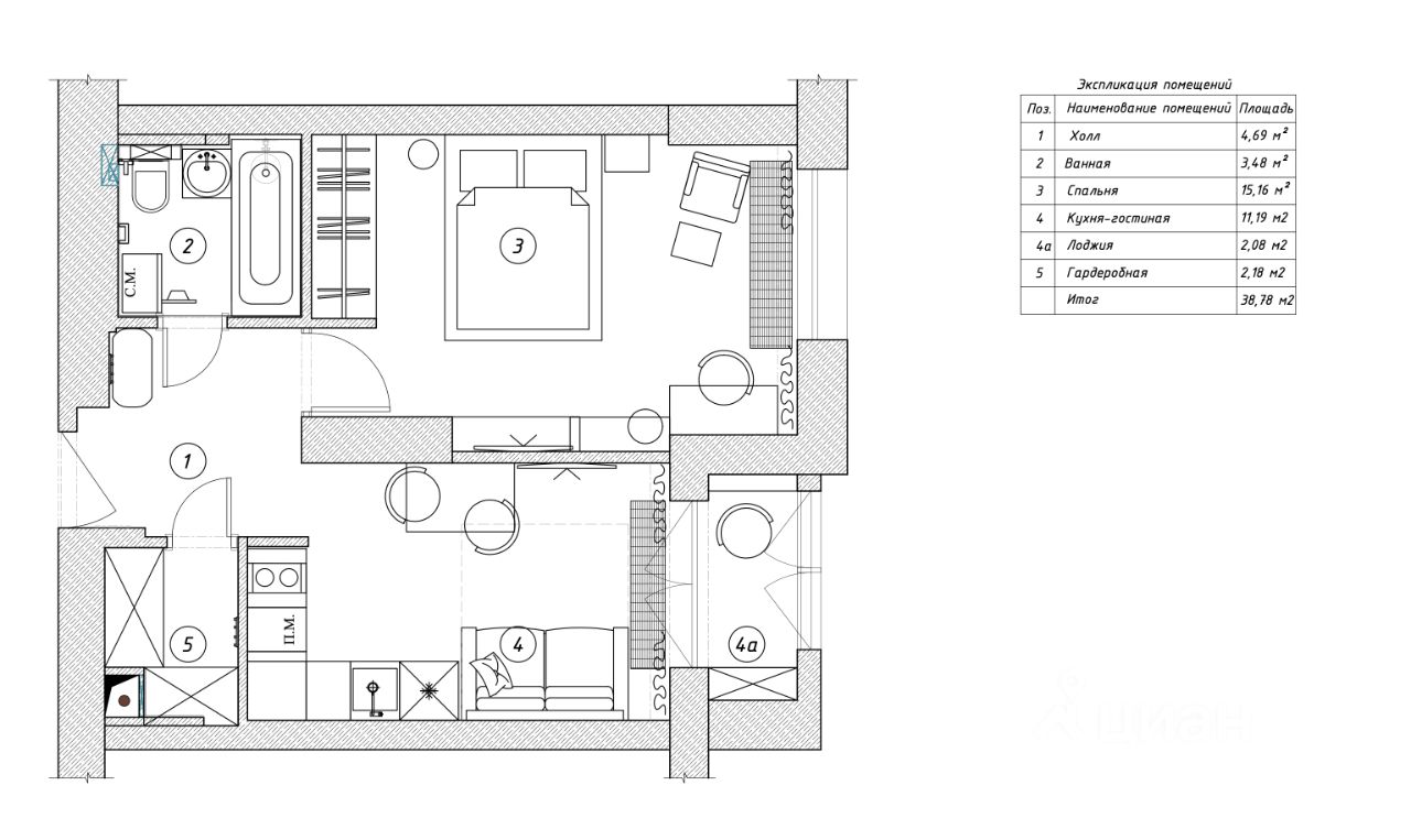
Продается однокомнатная квартира евростандарта в ЖК Сидней Сити по адресу: Москва, Шелепихинская набережная, дом 40, корпус 1, расположенная на 6 этаже, общей площадью 37,6 кв.м (с учетом лоджии 38,7 кв.м.)
Функциональная планировка: кухня-гостиная 11.7 кв.м., спальня 15.2 кв.м., с/узел совмещенный, гардеробная, окна выходят на сторону школы (юго-восток), потолки 3.10 м.
Квартира с дизайнерским ремонтом, продается с мебелью и техникой. Никто не жил. Отличный вариант как для собственного проживания, так и под найм.
ЖК премиум-класса с собственной инфраструктурой: детский сад, школа, магазины, аптеки, кофейни и ресторан. Огороженная охраняемая территория: уютный двор с детскими площадками,, зонами для занятий спортом, двор без машин.
Продается однокомнатная квартира евростандарта в ЖК Сидней Сити по адресу: Москва, Шелепихинская набережная, дом 40, корпус 1, расположенная на 6 этаже, общей площадью 37,6 кв.м (с учетом лоджии 38,7 кв.м.)
Функциональная планировка: кухня-гостиная 11.7 кв.м., спальня 15.2 кв.м., с/узел совмещенный, гардеробная, окна выходят на сторону школы (юго-восток), потолки 3.10 м.
Квартира с дизайнерским ремонтом, продается с мебелью и техникой. Никто не жил. Отличный вариант как для собственного проживания, так и под найм.
ЖК премиум-класса с собственной инфраструктурой: детский сад, школа, магазины, аптеки, кофейни и ресторан. Огороженная охраняемая территория: уютный двор с детскими площадками,, зонами для занятий спортом, двор без машин. Охрана 24/7, видеонаблюдение общественных зон и дворов. Двухуровневый подземный паркинг.
Хорошая транспортная доступность: удобный выезд на Звенигородское шоссе, ТТК и ЮВХ. В 2026 году недалеко от дома планируется открытие станции метро Звенигородская.
Квартира покупалась по ДДУ у застройщика, один взрослый собственник, никто не прописан, свободная продажа, ипотека возможна, оперативный показ.