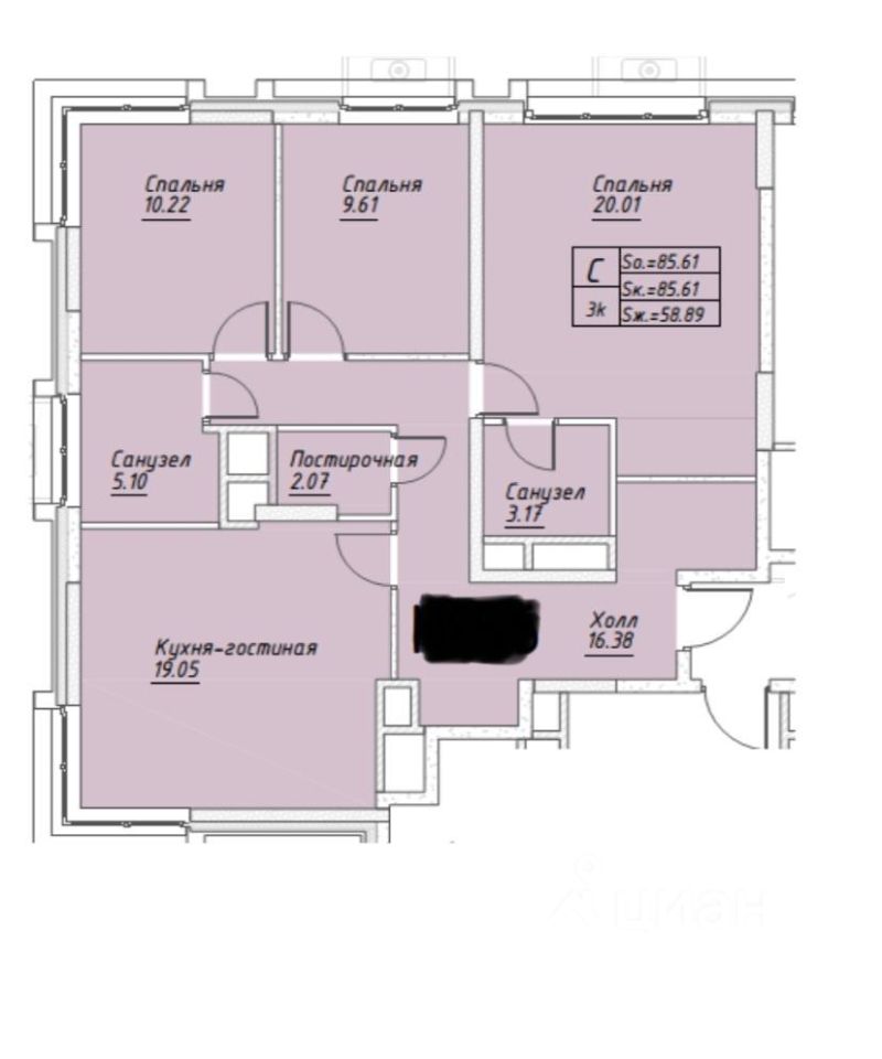
Предлагается к продаже просторная четырехкомнатная квартира-студия площадью 85.8 квадратных метров на 15-м этаже в современном ЖК Любовь и голуби.
Данный жилой комплекс построен в 2020 году и отличается качественной застройкой и продуманной инфраструктурой. Во дворе дома обустроены детская и спортивная площадки, что позволит вашим детям активно проводить время под открытым небом. Безопасность жителей обеспечивает закрытая территория здания, а также удобная подземная парковка поможет решить вопрос с автомобилем.
Жильё располагает прекрасно спланированными пространствами: жилая площадь - три полноценные спальни, просторная кухня-гостиная занимает комфортные 19.5 квадратных метров. Квартира предстает в отличном состоянии и готова к проживанию.
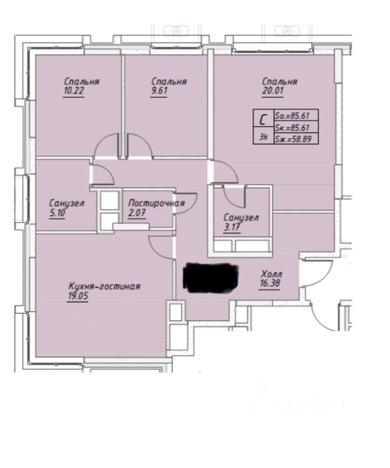
Предлагается к продаже просторная четырехкомнатная квартира-студия площадью 85.8 квадратных метров на 15-м этаже в современном ЖК Любовь и голуби.
Данный жилой комплекс построен в 2020 году и отличается качественной застройкой и продуманной инфраструктурой. Во дворе дома обустроены детская и спортивная площадки, что позволит вашим детям активно проводить время под открытым небом. Безопасность жителей обеспечивает закрытая территория здания, а также удобная подземная парковка поможет решить вопрос с автомобилем.
Жильё располагает прекрасно спланированными пространствами: жилая площадь - три полноценные спальни, просторная кухня-гостиная занимает комфортные 19.5 квадратных метров. Квартира предстает в отличном состоянии и готова к проживанию. Приятным бонусом для новых владельцев останется кухонный гарнитур, выполненный по индивидуальному заказу с каменной столешницей, встроенной бытовой техникой европейских производителей (духовой шкаф, плита, посудомоечная машина, микроволновая печь). Наличие более чем одного санузла значительно повышает комфорт проживания семьи. Имеется постирочная и гардеробная, решающая проблему хранения вещей. Из окон открывается красивейший вид на Останкинскую башню.
Развитая инфраструктура, в шаговой доступности 2 школы, 4 детских сада, поликлиника, стоматология, фитнес зал, недавно открылся большой торговый центр Avenue sever. На территории ЖК находится частная школа и детский сад предпринимателя Игоря Рыбакова, основателя Технониколь - Rybakov Playschool. На первых этажах ЖК расположены магазины, пиццерия, аптека, пункты выдачи заказов.
Расположение дома позволяет быстро добраться до ближайших станций метро: метро Селигерская 11 минут пешком, до ж/д платформы Моссельмаш 6 минут, от которой можно доехать до центра города за 25 мин., что делает передвижение по городу удобным и быстрым.
Приглашаем вас оценить все преимущества данной квартиры лично! Она ждет своих новых владельцев, готовых оценить качество и комфорт современного жилья.
Покажем в удобное для Вас время, окажем помощь в получении ипотечного решения!!!