сдам офисное помещение, Ленинградский проспект, 47 ст23 679 167 ₽ в месяц
11 дек
Дата публикации объявления
Обн. сегодня
Дата обновления объявления
4166 ₽/м² в месяц
Параметры
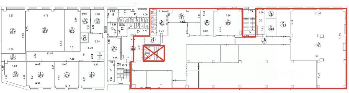
Общая площадь883 м2
Этаж6
Год постройки2005
Лот: 418885, бизнес-центр Avion. БЕЗ КОМИССИИ! Сдается в аренду офис площадью 883 м2 на 6 этаже в бизнес-центре класса B+ Avion, расположенном в 1 минута пешком от метро Аэропорт. Планировка: 16 кабинетов, 11 из них — с окнами, кухня, санузлы. Состояние помещения: с ремонтом. Провайдеры: Мегафон, ВымпелКом, Логика, Биз-Телеком. Безопасность: охрана 24 часа, видеонаблюдение, система контроля доступа. Условия аренды: В арендную плату включено: НДС, эксплуатационные расходы. Отдельно оплачиваются: коммунальные платежи, уборка внутри помещения, парковка, интернет (отдельный договор с провайдером). Предоставляется юридический адрес. Обеспечительный платеж — 2 месяца. Налоговая 14.
Лот: 418885, бизнес-центр Avion. БЕЗ КОМИССИИ! Сдается в аренду офис площадью 883 м2 на 6 этаже в бизнес-центре класса B+ Avion, расположенном в 1 минута пешком от метро Аэропорт. Планировка: 16 кабинетов, 11 из них — с окнами, кухня, санузлы. Состояние помещения: с ремонтом. Провайдеры: Мегафон, ВымпелКом, Логика, Биз-Телеком. Безопасность: охрана 24 часа, видеонаблюдение, система контроля доступа. Условия аренды: В арендную плату включено: НДС, эксплуатационные расходы. Отдельно оплачиваются: коммунальные платежи, уборка внутри помещения, парковка, интернет (отдельный договор с провайдером). Предоставляется юридический адрес. Обеспечительный платеж — 2 месяца. Налоговая 14. На охраняемой парковке есть возможность аренды машиноместа по ставке 25000 руб в месяц (количество мест — ограничено, по запросу).