сдам офисное помещение, Ленинградский проспект, 80 корп. 371 553 540 ₽ в месяц
9 дек
Дата публикации объявления
Обн. сегодня
Дата обновления объявления
Топ
2084 ₽/м² в месяц
Параметры
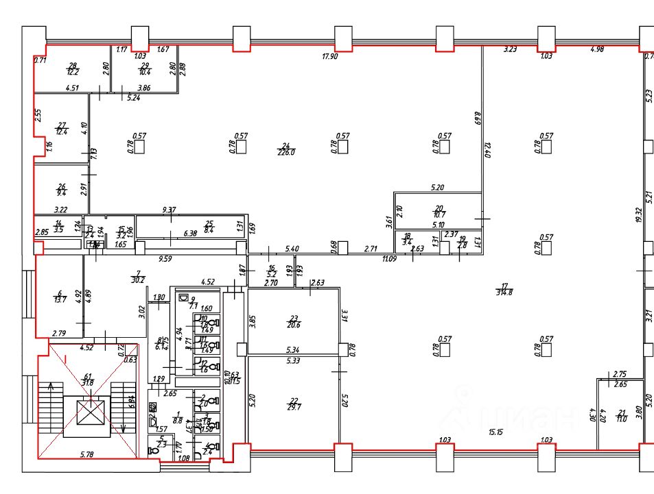
Общая площадь745,7 м2
Этаж5
Год постройки1964
Предлагаем в аренду офисный блок от собственника. Площадь 745,7 кв.м. Расположенное по адресу: Ленинградский проспект 80, корпус 37, этаж 5. Транспортная доступность: 7 минут пешком от метро Сокол. В арендную ставку включены: НДС и эксплуатационные услуги. Коммунальные расходы оплачиваются отдельно.
Наши арендаторы : супермаркет ''Перекресток'', рестораны ''Якитория'', бар ''Следующая станция Сокол'', ''Osteria Mario'', ''Вкусно и Точка'', батутный центр ''Небо'', банк ''ПромСвязьБанк'', концертная площадка ''VK Stadium'', кафе ''SubWay'', ''Экспериментаниум''- детский развлекательный музейный комплекс. Индивидуальные условия по интернету и телефонии.
Предлагаем в аренду офисный блок от собственника. Площадь 745,7 кв.м. Расположенное по адресу: Ленинградский проспект 80, корпус 37, этаж 5. Транспортная доступность: 7 минут пешком от метро Сокол. В арендную ставку включены: НДС и эксплуатационные услуги. Коммунальные расходы оплачиваются отдельно.
Наши арендаторы : супермаркет ''Перекресток'', рестораны ''Якитория'', бар ''Следующая станция Сокол'', ''Osteria Mario'', ''Вкусно и Точка'', батутный центр ''Небо'', банк ''ПромСвязьБанк'', концертная площадка ''VK Stadium'', кафе ''SubWay'', ''Экспериментаниум''- детский развлекательный музейный комплекс. Индивидуальные условия по интернету и телефонии.
Дополнительные услуги для арендаторов: уборка помещений, ремонт и отделка помещений, охрана, эксплуатация и обслуживание инженерного оборудования и помещений, юридический адрес, парковка на территории.
Возможность арендовать дополнительные офисные, торговые, производственные и складские площади на территории площадки.
Компания Социум Сокол является собственником 130 000 кв.м. сдаваемых площадей, более 1 000 компаний являются нашими арендаторами, которые начинали и построили свой успешный бизнес вместе с Нами.
Спешите и Вы стать нашим арендатором и партнером по бизнесу.