Если цена в объявлении изменится, мы сразу сообщим вам об этом на электронную почту.
Нажимая «Подписаться», вы соглашаетесь с правилами.
продам коттедж, Русская Усадьба кп, 8138 000 000 ₽
4 дек
Дата публикации объявления
Обн. 11 мая
Дата обновления объявления
17
Количество просмотров (+ просмотры за сегодня)
Топ
Спецпредложение
Выделение цветом
Турбо x2
Турбо x4
Турбо x8
168 291 ₽/м²
Чистая продажа
Термин "Чистая продажа" означает, что в квартире никто не прописан или
есть куда выписаться и вывезти вещи. Это лучший вариант для покупателя.
Вероятность срыва сделки минимальна.
Этажей2
Площадь участка8,7 соток
Общая площадь225,8 м2
ЭлектричествоЕсть
Газоснабжениенет
Мечтаете об уютном московском доме в лесу? Тогда вы нашли то, что искали! Аккуратный и стильный дом, граничащий с березовым лесом всего в 25 км по Киевскому шоссе. До метро Пыхтино 15 минут на автомобиле. Московская прописка.
Оптимальная площадь 220 кв.м. с идеальной планировкой позволит вам насладиться уютом и комфортом загородного жителя.
Рядом магазины Вкусвилл, Пятерочка, Дикси. Поликлиника. Детские сады и школа.
Первый этаж: - просторная входная группа, - гостевая комната, - санузел с душевой - бойлерная (электрокотел 14Квт. Stout, Бак на 200л, водоочистка) - большая гостиная с дизайнерской кухней (духовой шкаф, вытяжка, плита, посудомоечная машина - все встроено), выход на веранду, а также лаунж-зона с телевизором.
Мечтаете об уютном московском доме в лесу? Тогда вы нашли то, что искали! Аккуратный и стильный дом, граничащий с березовым лесом всего в 25 км по Киевскому шоссе. До метро Пыхтино 15 минут на автомобиле. Московская прописка.
Оптимальная площадь 220 кв.м. с идеальной планировкой позволит вам насладиться уютом и комфортом загородного жителя.
Рядом магазины Вкусвилл, Пятерочка, Дикси. Поликлиника. Детские сады и школа.
Первый этаж: - просторная входная группа, - гостевая комната, - санузел с душевой - бойлерная (электрокотел 14Квт. Stout, Бак на 200л, водоочистка) - большая гостиная с дизайнерской кухней (духовой шкаф, вытяжка, плита, посудомоечная машина - все встроено), выход на веранду, а также лаунж-зона с телевизором. - под лестницей место для кладовой с полками. Высокие потолки (3м) и большие окна с тройным стеклопакетом (Rehau серии Люкс) и шпросами (декоративная решетка на окнах). Теплые полы и керамогранитная плитка под паркетную доску (дуб)
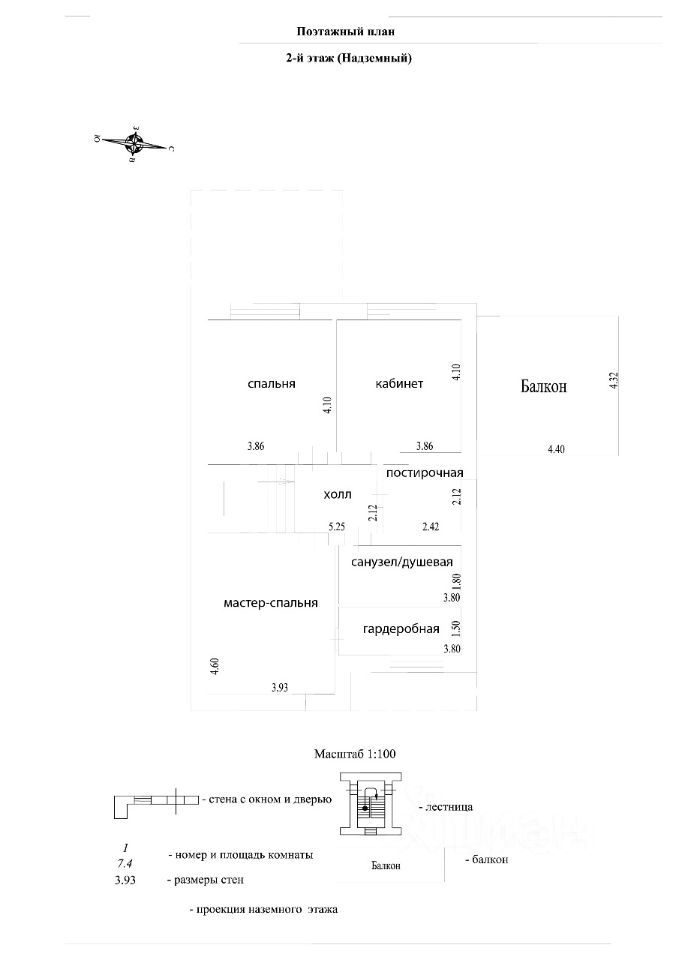
Второй этаж: - мастер-спальня с гардеробной комнатой, - санузел с душевой, - постирочная, - спальня/детская, - кабинет с выходом на балкон, Ламинат.
- Утеплённый чердак. - Хозблок - Навес для авто на 2 автомобиля
Дом меблирован, стены покрашены в нежнейших пастельных оттенках скандинавского стиля, натяжные потолки, встроенные светильники.
Материалы дома: - фундамент - монолитная плита - стены газоблок Bonolit 40 см - межкомнатные стены из полнотелого кирпича - межэтажное перекрытие - монолит - крыша металлочерепица Grandline - облицовка дома из кирпича - качественная электропроводка (ГОСТ) - электричество 25 Квт - входная дверь с терморазрывом. - своя скважина с качественной системой водоочистки - септик ''Аквалос'' 4пр - отсекающая дренажная система - установлены камеры видеонаблюдения по всему периметру участка и дома. - предусмотрена автономная система охраны и сигнализации.
- 1 собственник - деревенский тариф на электроэнергию - назначение земли ИЖС - присвоен адрес жилого дома, прописка Москва. - есть возможность взять часть граничащего леса в аренду или оформить в собственность.
Дом строили ДЛЯ СЕБЯ! А значит, что это максимальная гарантия качества. Продадим с любовью и пожеланиями самой комфортной и счастливой загородной жизни!
Оперативный показ. Звоните и записывайтесь на просмотр прямо сейчас!