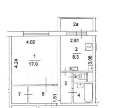
Свободная продажа. До метро Войковская 10 мин пешком. Ремонт евро, делали для себя, практически все новое, можно заехать с чемоданчиком и жить. Взрослый собственник более 5 лет, полная стоимость в договоре. Рядом два парка: ''Покровское-Стрешнево'' и ''Тимирязевский'', самый большой ТЦ ''Метрополис'' около метро. Дом в тихом дворе, никто не ездит под окнами. Соседи все приличные. Никто не прописан. Ключи на руках, показ оперативно.