сдам офисное помещение, Андропова проспект, 11 корп. 2 ст27 386 083 ₽ в месяц
2 дек
Дата публикации объявления
Обн. вчера
Дата обновления объявления
8
Количество просмотров (+ просмотры за сегодня)
2541 ₽/м² в месяц
Параметры
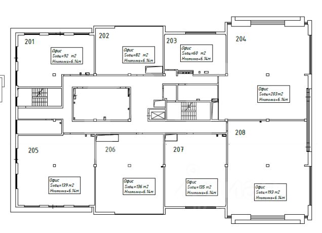
Общая площадь2906 м2
Этаж2
Год постройки2023
Предлагаем в аренду офис на 243 - 645 сотрудников в бизнес-парке ''деловой квартал ЮПорт''. Разработаем планировку под вашу команду бесплатно с неограниченными правками.
Площадь: 2 906 м². Состояние: под отделку. Арендная плата: 7 386 083 руб./мес. Ставка: 30 500 руб./м²/год (включая эксплуатацию). Налогообложение: включая НДС. Коммунальные расходы: оплачиваются по факту. Тип аренды: прямая аренда. Этаж: 1, 2 из 4.
Бизнес-центр ЮПорт класса А расположен рядом с метро Технопарк.
Предлагаем в аренду офис на 243 - 645 сотрудников в бизнес-парке ''деловой квартал ЮПорт''. Разработаем планировку под вашу команду бесплатно с неограниченными правками.
Площадь: 2 906 м². Состояние: под отделку. Арендная плата: 7 386 083 руб./мес. Ставка: 30 500 руб./м²/год (включая эксплуатацию). Налогообложение: включая НДС. Коммунальные расходы: оплачиваются по факту. Тип аренды: прямая аренда. Этаж: 1, 2 из 4.