Помещение свободного назначения!
Отдельный вход
5 минуты пешком от МЦД-2 Стрешнево
15 мин. пешком от метро Сокол
Интенсивный пешеходный и автомобильный трафик
Рядом активное торговое окружение
Остановка общественного транспорта
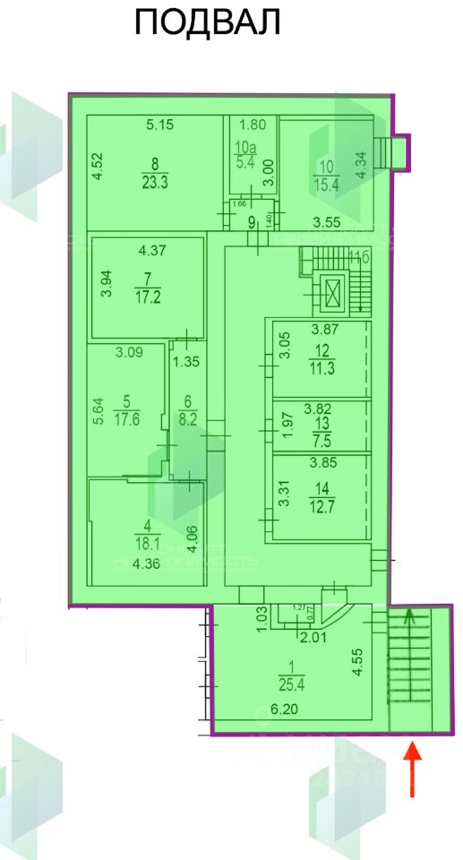
О помещении:
- Площадь 200,9 кв.м
- 1 вход
- Высота потолков 2,3 м.
- Этажность: -1
- Мокра точка, санузел, отопление, вытяжка
- Электрическая мощность: 15 кВт (возможно увеличение)
- Парковка бесплатная
- Большой рекламный потенциал
Оперативный показ!
Звоните, пишите мы обязательно договоримся!
Буду рад ответить на Ваши вопросы!
Лот 130-103663














