сдам офисное помещение, Бумажный проезд, 19 ст58 930 855 ₽ в месяц
29 ноя
Дата публикации объявления
Обн. 19 апр
Дата обновления объявления
1
Количество просмотров (+ просмотры за сегодня)
5009 ₽/м² в месяц
Параметры
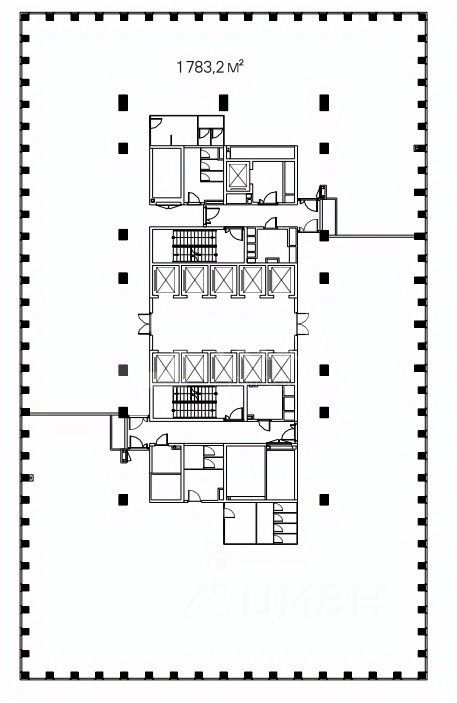
Общая площадь1783,2 м2
Этаж15 или выше
Год постройки2024
Аренда офиса 1783.2 кв. м в бизнес-центре ''STONE Tower B (Стоун Башня Б)'' (класс A). Этаж: 19. Отделка - без отделки Тип планировки - open-space. Вход - общий с улицы Мокрые точки - да Сан. узлы - в блоке Назначение: Офис
Полная ставка аренды - 60 100 руб. за кв. м/год. НДС включен, эксплуатация включена Месячный арендный платеж 8 930 860 руб./месяц. Коммунальные расходы - По счётчикам
Бизнес-центр ''STONE Tower B (Стоун Башня Б)'' находится по адресу: Москва, Бумажный проезд, 19с5.
Аренда офиса 1783.2 кв. м в бизнес-центре ''STONE Tower B (Стоун Башня Б)'' (класс A). Этаж: 19. Отделка - без отделки Тип планировки - open-space. Вход - общий с улицы Мокрые точки - да Сан. узлы - в блоке Назначение: Офис
Полная ставка аренды - 60 100 руб. за кв. м/год. НДС включен, эксплуатация включена Месячный арендный платеж 8 930 860 руб./месяц. Коммунальные расходы - По счётчикам
Бизнес-центр ''STONE Tower B (Стоун Башня Б)'' находится по адресу: Москва, Бумажный проезд, 19с5. Район: Беговой Год постройки здания: 2024 Налоговая: 14 Наличие паркинга: подземный Вентиляция: Приточная Пожарная система: Газовая Ближайшие станции метро: Белорусская (12 минут пешком)
Позвоните и мы ответим на все Ваши вопросы, направим презентацию с планировками и оперативно организуем показ. Наши услуги для Вас бесплатны!
Для быстрого поиска объекта в СРМ назовите менеджеру ID данного помещения - 9887