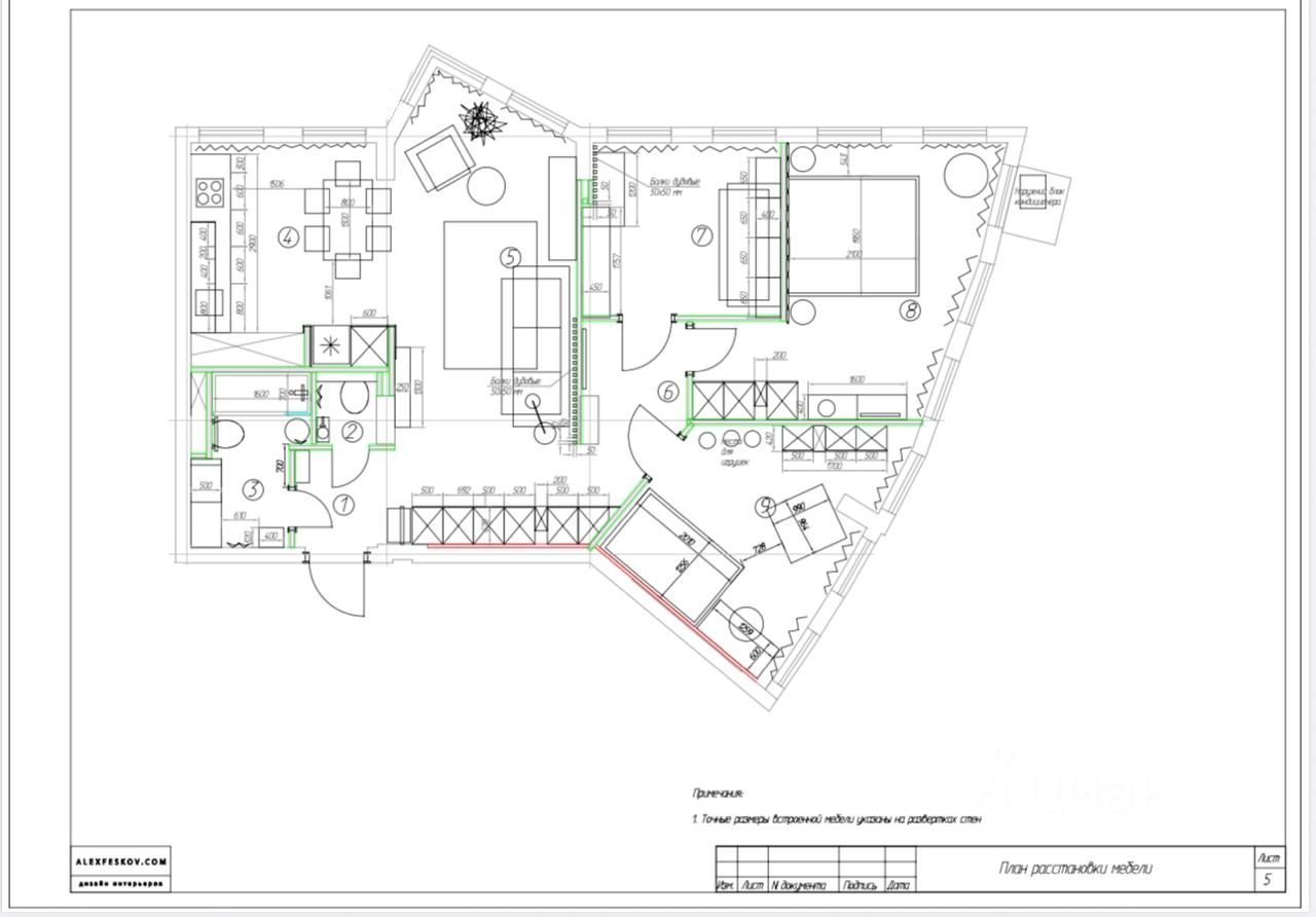
Функциональная планировка: просторная кухня-гостиная 32,6 м² и 3 изолированные комнаты (22 м², 16 м², 9 м²). 8 этаж 17-этажного монолитного дома 2016 года. Потолки 2,8 м, два санузла, много естественного света.
Дизайнерский ремонт с полной шумоизоляцией и качественными инженерными решениями. Квартира полностью готова к проживанию — мебель и техника остаются.
ЖК с огороженной территорией, видеонаблюдением и консьержем. В шаговой доступности — Лефортовский парк, школы, детские сады, магазины. Удобный выезд и транспортная доступность.
Более 5 лет в собственности, без обременений. Ипотека возможна. Дополнительно предлагается сдвоенное место в подземном паркинге.































