Термин "Чистая продажа" означает, что в квартире никто не прописан или
есть куда выписаться и вывезти вещи. Это лучший вариант для покупателя.
Вероятность срыва сделки минимальна.
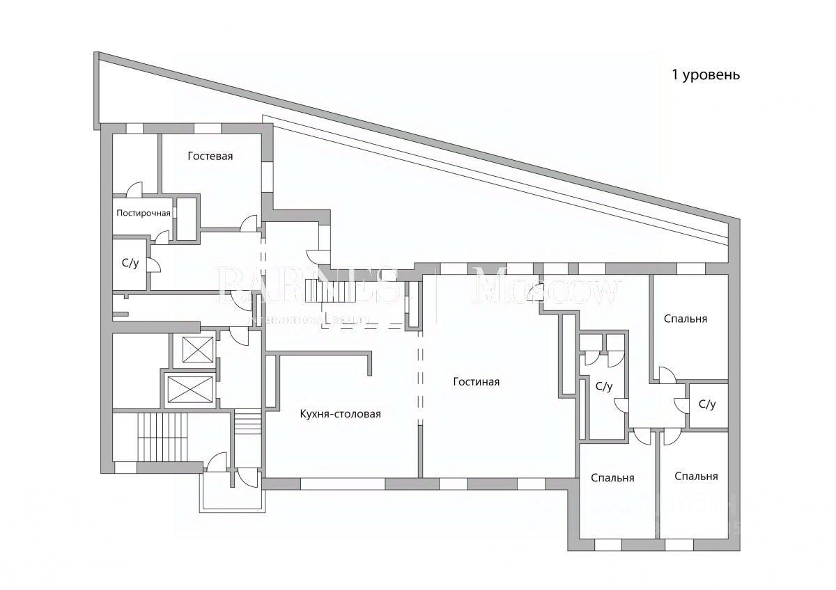
Номер объекта: 585922. ID: 585922 Роскошный 2-уровневый пентхаус с террасой и видом на воду в элитном жилом комплексе ''Город Яxт''.
Выполнена авторская отделка в классическом стиле с использованием дорогостоящих материалов (натуральный мрамор, дубовый пол, шелковые обои). Продуманный до мелочей интерьер дополнен мебелью, изготовленной на заказ, и техникой премиальных брендов.
Планировочное решение: 1 уровень - терраса с великолепными видами на воду, просторная гостиная с роялем, кухня-столовая, кабинет, 3 спальни с санузлами, гардеробная, санузел, постирочная, xолл, 2 уровень - каминный зал, мастер-спальня с санузлом, сейфовая, гардеробная, холодильная камера, 2 санузла, хаммам, 2 лоджии.
В квартире установлена система ''Умный дом''.
Номер объекта: 585922. ID: 585922 Роскошный 2-уровневый пентхаус с террасой и видом на воду в элитном жилом комплексе ''Город Яxт''.
Выполнена авторская отделка в классическом стиле с использованием дорогостоящих материалов (натуральный мрамор, дубовый пол, шелковые обои). Продуманный до мелочей интерьер дополнен мебелью, изготовленной на заказ, и техникой премиальных брендов.
Планировочное решение: 1 уровень - терраса с великолепными видами на воду, просторная гостиная с роялем, кухня-столовая, кабинет, 3 спальни с санузлами, гардеробная, санузел, постирочная, xолл, 2 уровень - каминный зал, мастер-спальня с санузлом, сейфовая, гардеробная, холодильная камера, 2 санузла, хаммам, 2 лоджии.
В квартире установлена система ''Умный дом''. Одна квартира на этаже.
Благоустроенная придомовая территория. Круглосуточная охрана, пропускная система, видеонаблюдение. Работает консьерж-сервис. Предусмотрен подземный паркинг. Внутренняя инфраструктура комплекса: сигарный клуб, бильярдная, библиотека, тренажерный зал, турецкая баня, салон красоты, спа-центр, кинотеатр и ресторан. В комплексе собственный яxт-клуб и стоянка для катеров.
В пешей доступности расположены пляж-ресторан Vodный, пляж Динамо, набережная, березовый парк.