Характеристики: - Класс: B+, - Арендопригодная площадь: 92650, - Код налоговой: 31, - Высота потолков: 3.6 м, - Наличие лифта: Есть, - Кол-во мест наземного паркинга: 752, - Кол-во мест подземного паркинга: 100, - Шаг колонн: 6x6 м.
Арендная ставка: 35 000.4 руб./кв. м в год.
Финансовые условия: - В стоимость включено: OPEX, НДС, - Оплачивается отдельно: Интернет, Коммунальные услуги, Телефония, Уборка, Электроэнергия, - Налог: Включая НДС.
Без комиссии и скрытых платежей для арендатора.
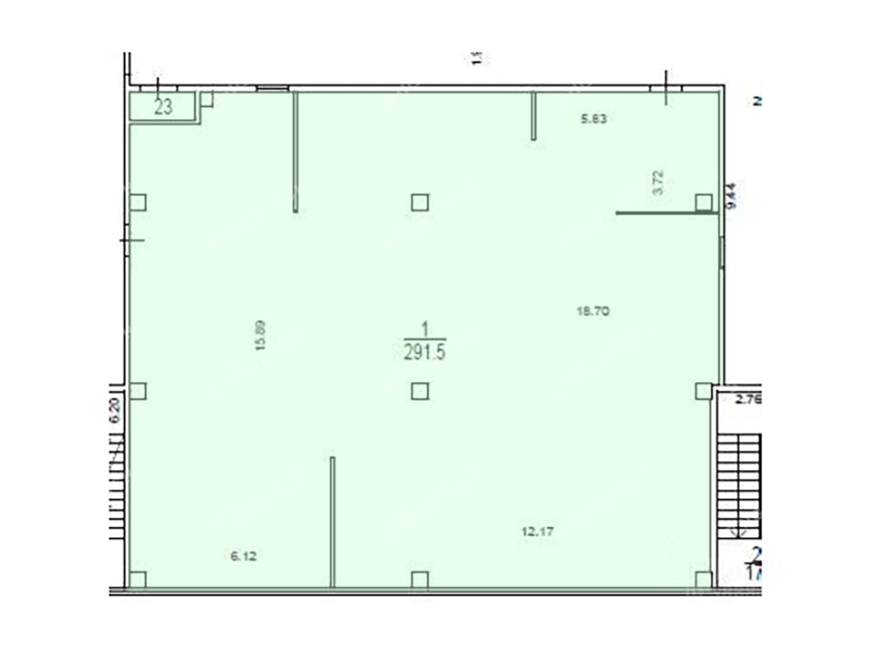
Офисное помещение 294.3 кв. м в бизнес-центре ''Верейская Плаза 3''.
Характеристики: - Класс: B+, - Арендопригодная площадь: 92650, - Код налоговой: 31, - Высота потолков: 3.6 м, - Наличие лифта: Есть, - Кол-во мест наземного паркинга: 752, - Кол-во мест подземного паркинга: 100, - Шаг колонн: 6x6 м.
Арендная ставка: 35 000.4 руб./кв. м в год.
Финансовые условия: - В стоимость включено: OPEX, НДС, - Оплачивается отдельно: Интернет, Коммунальные услуги, Телефония, Уборка, Электроэнергия, - Налог: Включая НДС.
Без комиссии и скрытых платежей для арендатора.
Готовы оперативно организовать просмотр в удобное время, предоставить PDF-презентацию и план. Точное местоположение объекта можно найти по данным координатам: 55.709471,37.442059