Термин "Чистая продажа" означает, что в квартире никто не прописан или
есть куда выписаться и вывезти вещи. Это лучший вариант для покупателя.
Вероятность срыва сделки минимальна.
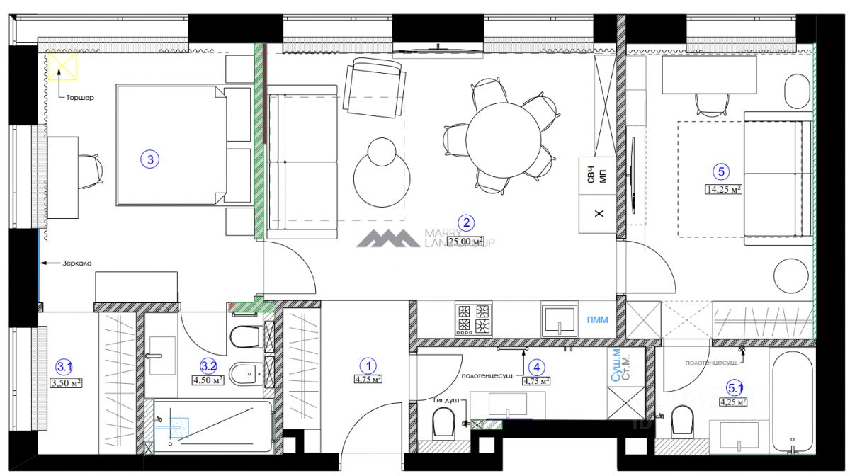
V151 К продаже предлагается 3-комнатный апартамент в лучшем ЖК района Премиум класса SLAVA! Редкое предложение в данном крыле на этаже нет соседей, максимальная приватность, рядом с апартаментов располагается кладовое помещение 4 кв.м. (В ПОДАРОК). 1-я очередь. Секция А1 (Гранд лобби), которое оснащено просторной мягкой зоной ожидания, двумя переговорными комнатами и выходом на закрытую благоустроенную территорию. Эффективная, эргономичная планировка и дизайн проект от архитектурного бюро Architeque Design Bureau, 2 мастер спальни с собственными санузлами и гардеробными), кухня-гостиная, гостевой санузел с постирочной. Угловой апартамент, 6 панорамных окон, вид в благоустроенный двор, по солнцу северо-восток.
V151 К продаже предлагается 3-комнатный апартамент в лучшем ЖК района Премиум класса SLAVA! Редкое предложение в данном крыле на этаже нет соседей, максимальная приватность, рядом с апартаментов располагается кладовое помещение 4 кв.м. (В ПОДАРОК). 1-я очередь. Секция А1 (Гранд лобби), которое оснащено просторной мягкой зоной ожидания, двумя переговорными комнатами и выходом на закрытую благоустроенную территорию. Эффективная, эргономичная планировка и дизайн проект от архитектурного бюро Architeque Design Bureau, 2 мастер спальни с собственными санузлами и гардеробными), кухня-гостиная, гостевой санузел с постирочной. Угловой апартамент, 6 панорамных окон, вид в благоустроенный двор, по солнцу северо-восток. В стадии ремонта (произведены все капитальные работы, вышли на чистовую отделку). Низкая кадастровая стоимость, 8,9 млн.р., налог на имущество 0,5%, отличная УК. ММ и кладовое помещение 10 кв.м. в подземном паркинге. SLAVA - это уникальный синтез статусного президенства, высокой деловой активности (офисы ЦБ, Белая площадь, Белые сады, Four Winds), ресторанной жизни и насыщенной инфраструктуры. 1 собственник (личное присутствие на сделке), свободная продажа, без обременений, оперативный показ (ключи на руках), работаем с партнерами.