Сдается в аренду офисное помещение с Vip зоной на 1-2 этажах в административном здании В класса, которое находится по адресу: ул. 4-я Магистральная, д. 7, стр. 1.
Пешая доступность от станций метро Хорошевская, Полежаевская, Хорошево. Удобный выезд на 1-ю Магистральную улицу и Магистральный переулок.
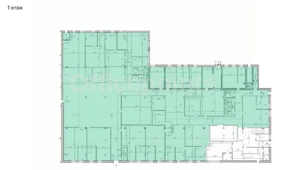
В помещении стандартная офисная отделка, кабинетная планировка, с мебелью, с вип-зоной. Два отдельных входа с улицы. Высота потолков 3-5 м. Мокрая точка. Приточно-вытяжная система вентиляция, центральная система кондиционирования. В наличии наземная парковка на 60 м/м (10 000 рублей в месяц за м/м).
Арендные каникулы и ставка подлежат обсуждению.























