Термин "Чистая продажа" означает, что в квартире никто не прописан или
есть куда выписаться и вывезти вещи. Это лучший вариант для покупателя.
Вероятность срыва сделки минимальна.
Квартира
Общая площадь241,7 м2
Жилая площадь93,1 м2
Кухня25 м2
Количество балконов1
Количество лоджий4
Тип собственностисвидетельство о праве собственности
Двухуровневый пентхаус с эксклюзивной отделкой: площадь с учетом террасы 389 м2, 3 спальни, 7-8 этажи Клубного дома TURGENEV. Дом сдан.
Особенности: Двухуровневая квартира с эксклюзивной финишной отделкой, большая площадь, собственная просторная терраса на кровле, 4 открытые галереи, второй свет в зоне столовой, дровяной камин, библиотека.
Описание: Двухуровневый пентхаус имеет выход на собственную террасу на кровле (134,30 м2), с которой открывается прекрасный вид на западную часть города в сторону Москва-Сити, Цветного бульвара, Останкинской башни. На каждом уровне пентхауса предусмотрены по 2 открытых галереи. С восточной стороны галереи выходят во внутренний двор-сад с фонтанами и водными каналами.
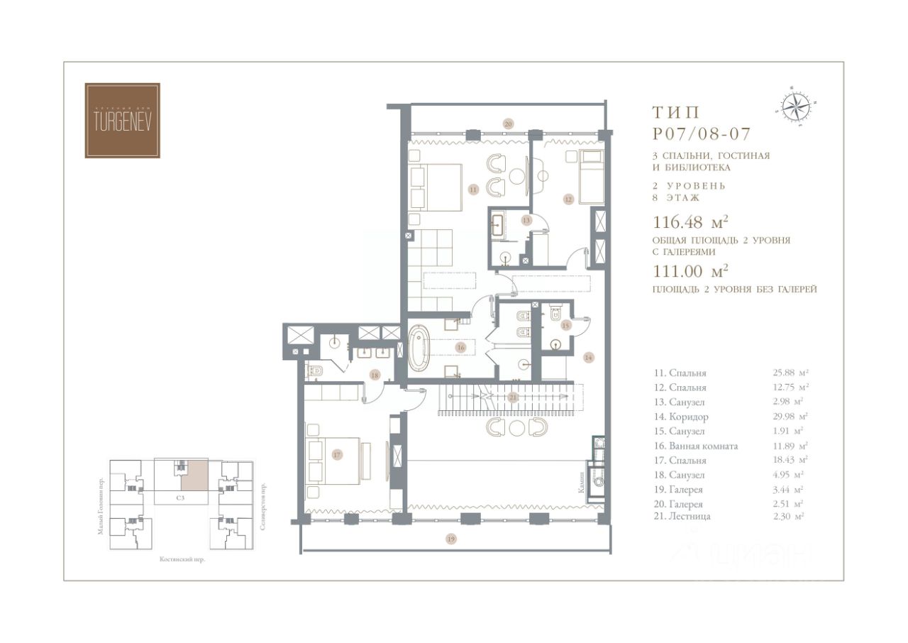
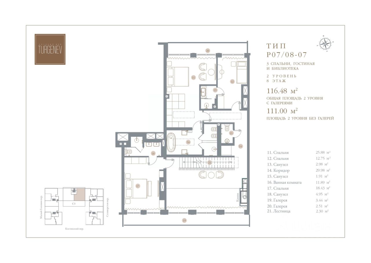
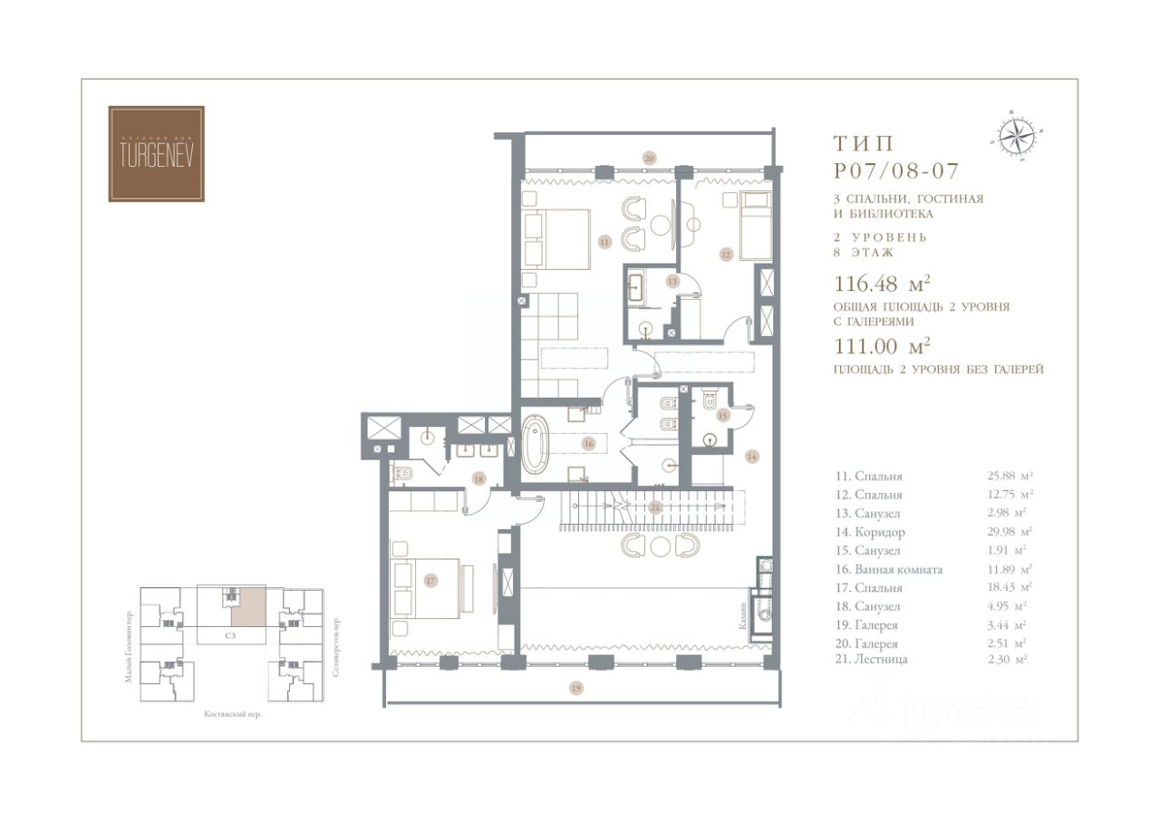
Двухуровневый пентхаус с эксклюзивной отделкой: площадь с учетом террасы 389 м2, 3 спальни, 7-8 этажи Клубного дома TURGENEV. Дом сдан.
Особенности: Двухуровневая квартира с эксклюзивной финишной отделкой, большая площадь, собственная просторная терраса на кровле, 4 открытые галереи, второй свет в зоне столовой, дровяной камин, библиотека.
Описание: Двухуровневый пентхаус имеет выход на собственную террасу на кровле (134,30 м2), с которой открывается прекрасный вид на западную часть города в сторону Москва-Сити, Цветного бульвара, Останкинской башни. На каждом уровне пентхауса предусмотрены по 2 открытых галереи. С восточной стороны галереи выходят во внутренний двор-сад с фонтанами и водными каналами.
На 1 уровне пентхауса располагаются общие зоны: столовая (35,95 м2) с дровяным камином и вторым светом, кухня (25,18 м2), гостиная (23,56 м2), библиотека-кабинет (12,56 м2). Также здесь есть гостевой санузел (3,07 м2) и постирочная комната (5,51 м2).
На 2 уровне пентхауса находятся личные пространства: мастер-спальня (25,88 м2) и еще две спальни (12,75 м2 и 18,43 м2). Для каждой спальни предусмотрен собственный санузел: ванная комната (11,89 м2) при мастер-спальне и 2 душевых комнаты (2,98 м2 и 4,95 м2) при второй и третьей спальнях. На 2 уровне пентхауса также есть гостевой санузел и зона отдыха. В каждой комнате предусмотрены места для хранения.
Клубный дом TURGENEV (Тургенев) расположен в ЦАО Москвы в районе Чистых прудов, в тихом месте на Костянском переулке между Садовым и Бульварным кольцом, в 3 км от Красной площади Кремля. Рядом большое количество достопримечательностей, музеев, театров, ресторанов, баров, торговых центров.
Архитектурный проект дома разработан при участии международной команды архитекторов: Squire&Partners из Британии и Building Design Architectuur из Нидерландов. Фасад - натуральный камень: первые 6 этажей - португальский известняк, 7 и 8 этажи - гранит Dark Brown. Клубный дом TURGENEV имеет П-образную форму и состоит из 8 этажей, 5 секций и 118 квартир, включая двухуровневые пентхаусы с террасами и каминами.
Все квартиры в Клубном доме TURGENEV реализуются с чистовой премиальной дизайнерской отделкой в современном стиле контемпорари от нидерландского бюро Wolterinck. В отделке квартир в TURGENEV используются экологичные, природные материалы премиального качества: пол из натуральной австрийской паркетной доски Austriawood, стены - итальянская краска PRATTA Exclusive, в санузлах - английская штукатурка Tadelakt и натуральный мрамор: итальянский Wooden White и греческий Pirgon.
В каждой квартире установлены кухни от итальянского бренда Cesar со встроенной бытовой техникой премиальной линейки Smeg. Кухонный остров, столешница и фартук кухни выполнены из эксклюзивного итальянского мрамора Arabescato Grigio Orobico, одним из лучших видов мрамора на итальянском рынке натуральных отделочных камней.
Внутренний двор с садом Клубного дома TURGENEV - оазис с зелеными газонами, мощеными тропинками, фонтанами, водными каналами