Лот: 51002. В продаже квартира с дизайнерской отделкой в жилом комплексе ''Дом на Мосфильмовской''.
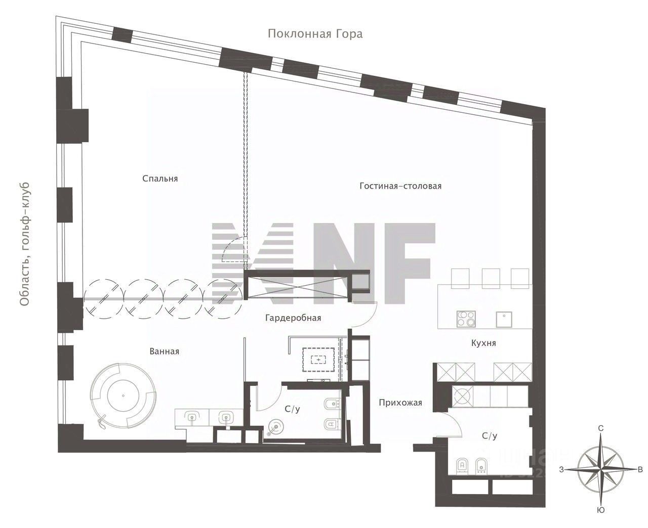
Планировка: гостиная-кухня, изолированная спальня с ванной комнатой с окном, гостевой санузел.
Выполнена новая отделка в современном стиле по авторскому проекту, установлена выполненная на заказ мебель, бытовая техника и сантехника ведущих брендов.
Из панорамных окон открывается красивый вид в сторону центра города.
Высота потолка 4,4 м.
Есть возможность покупки машино-мест в подземном паркинге.
Здравствуйте, я Елена Якушева, брокер международной консалтинговой компании NF GROUP.
Подробно расскажу об этой квартире и районе, оперативно организую просмотр и согласую лучшие условия.
Участник ассоциации агентств элитной недвижимости AREA





























