Если цена в объявлении изменится, мы сразу сообщим вам об этом на электронную почту.
Нажимая «Подписаться», вы соглашаетесь с правилами.
продам универсальное помещение, Александра Солженицына, 2723 471 199 ₽
11 ноя
Дата публикации объявления
Обн. 11 мая
Дата обновления объявления
320 251 ₽/м²
Параметры
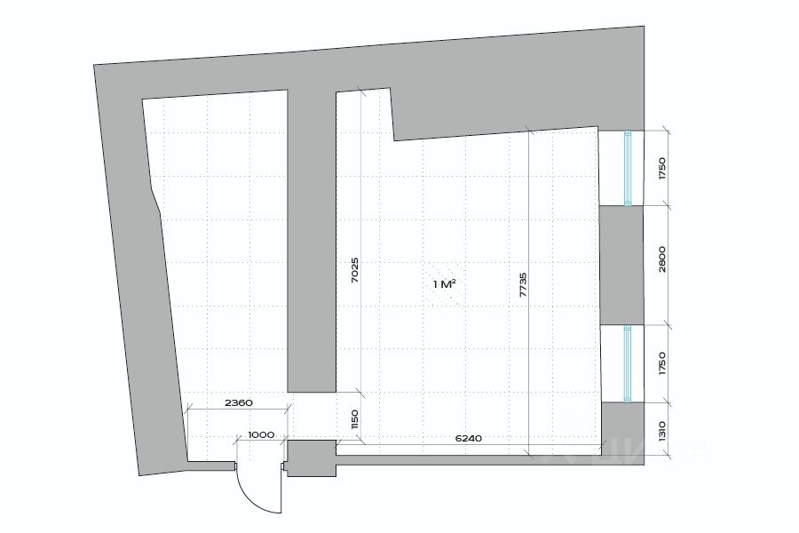
Общая площадь73,29 м2
ЭтажЦоколь
Год постройки1885
Назначение помещения
кафе, бар, ресторан
Предложение от застройщика. Новый премиальный бизнес-центр в Таганском районе ЦАО. Возврат НДС.
В продаже помещение свободного назначения площадью 73,29 м2 в торговой галерее на цокольном этаже. Характеристики: - Свободная планировка - 2 окна - Высота потолка 3 м - Центральные системы вентиляции и кондиционирования - Мокрая точка - Выделенная электрическая мощность 60 Вт/м2 - Отделка Shell & Core
Бизнес-центр Solо — клубный проект А класса, выполненный в формате интеллигентного редевелопмента с вниманием к каждой детали. Он органично вписан в архитектурный ансамбль с памятником архитектуры — усадьбой Морозовых, подчеркивая уважение к наследию и создавая по-настоящему харизматичную среду для бизнеса.
Предложение от застройщика. Новый премиальный бизнес-центр в Таганском районе ЦАО. Возврат НДС.
В продаже помещение свободного назначения площадью 73,29 м2 в торговой галерее на цокольном этаже. Характеристики: - Свободная планировка - 2 окна - Высота потолка 3 м - Центральные системы вентиляции и кондиционирования - Мокрая точка - Выделенная электрическая мощность 60 Вт/м2 - Отделка Shell & Core
Бизнес-центр Solо — клубный проект А класса, выполненный в формате интеллигентного редевелопмента с вниманием к каждой детали. Он органично вписан в архитектурный ансамбль с памятником архитектуры — усадьбой Морозовых, подчеркивая уважение к наследию и создавая по-настоящему харизматичную среду для бизнеса.
Расположение БЦ: Таганский район, ЦАО, улица Александра Солженицына, дом 27. Готовность БЦ: 3 кв. 2028 года.
Ключевые преимущества: • Уникальное расположение в респектабельном историческом центре столицы • Клубный формат — всего 87 офисов, каждый из которых имеет свою индивидуальность • Площади от 35 м² с потолками до 3,7 м • Панорамные виды на исторический центр Москвы: церкви, усадьбы, особняки
Технологии и комфорт: • Новейшее техническое оснащение, наличие мокрых точек в каждом помещении • Современные сервисы для резидентов: приватные переговорные, зоны для телефонных звонков, комната для хранения доставок, fitting room • Натуральный камень в отделке фасадов и интерьеров • Полноценная инфраструктура в 22 торговых пространствах под кафе, галереи, шоу-румы, салоны и пр.
БЦ Solo — идеальное сочетание для бизнеса: тихий исторический центр, харизматичная архитектура и новейшие технологии. Беспроцентная рассрочка, индивидуальные условия приобретения.