Если цена в объявлении изменится, мы сразу сообщим вам об этом на электронную почту.
Нажимая «Подписаться», вы соглашаетесь с правилами.
продам таунхаус, Варежки кв-л, 131/415 990 000 ₽
9 ноя
Дата публикации объявления
Обн. 19 янв
Дата обновления объявления
6
Количество просмотров (+ просмотры за сегодня)
164 337 ₽/м²
Чистая продажа
Термин "Чистая продажа" означает, что в квартире никто не прописан или
есть куда выписаться и вывезти вещи. Это лучший вариант для покупателя.
Вероятность срыва сделки минимальна.
Этажей2
Площадь участка2 сотки
Общая площадь97,3 м2
ЭлектричествоЕсть
Газоснабжениенет
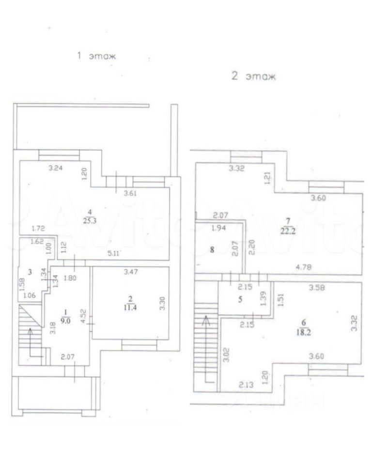
Продается двухуровневый таунхаус, в коттеджном поселке Варежки-2. Общая площадь дома 97,3 кв.м.
Земельный участок: Площадь земельного участка 2 сотки. На участке ухоженный газон. Терраса. Парковка на 2 автомобиля выложена брусчаткой.
Коммуникации: центральные.
Функциональная планировка: Продуманная планировка способствует созданию уютной атмосферы для каждого члена семьи. 1 этаж: прихожая, гостевая комната, просторная кухня-гостиная, санузел, выход на террасу и двор. 2 этаж: 2 спальни, санузел.
Инфраструктура: Въезд на территорию ЖК Варежки-2 осуществляется через КПП. Производится регулярное патрулирование всей территории, а также имеется видеонаблюдение.
Продается двухуровневый таунхаус, в коттеджном поселке Варежки-2. Общая площадь дома 97,3 кв.м.
Земельный участок: Площадь земельного участка 2 сотки. На участке ухоженный газон. Терраса. Парковка на 2 автомобиля выложена брусчаткой.
Коммуникации: центральные.
Функциональная планировка: Продуманная планировка способствует созданию уютной атмосферы для каждого члена семьи. 1 этаж: прихожая, гостевая комната, просторная кухня-гостиная, санузел, выход на террасу и двор. 2 этаж: 2 спальни, санузел.
Инфраструктура: Въезд на территорию ЖК Варежки-2 осуществляется через КПП. Производится регулярное патрулирование всей территории, а также имеется видеонаблюдение. Для гостей организована отдельные парковочные места. Коттеджный поселок Варежки-2 обладает развитой инфраструктурой, включая детские, спортивные и игровые площадки. Вблизи 2 детских сада, в пределах 1 километра расположена общеобразовательная школа, до которой курсирует бесплатный школьный автобус. В нескольких минутах ходьбы расположен современных физкультурно-оздоровительных комплекс, с бассейном длиной 25 метров, глубиной 2 метра, с современной системой очистки (без хлора). Непосредственно на территории ЖК Варежки-2 расположены магазин натуральных продуктов, супермаркет Пятерочка, салон красоты, автомойка с шиномонтажом. КП Варежки примыкают к лесному массиву национального парка Лосиный остров. На его территории раскинулись озера, берут начало реки Яуза и Пехорка.
Транспортная доступность: На машине до МКАД -20 км по Щелковскому шоссе или по Ярославскому шоссе. 15 мин на машине до ж/д станции Загорянская. До г. Щелково и г. Королев 10-15 минут на автомобиле.
1 взрослый собственник. Обременений нет. Документы к сделке готовы!