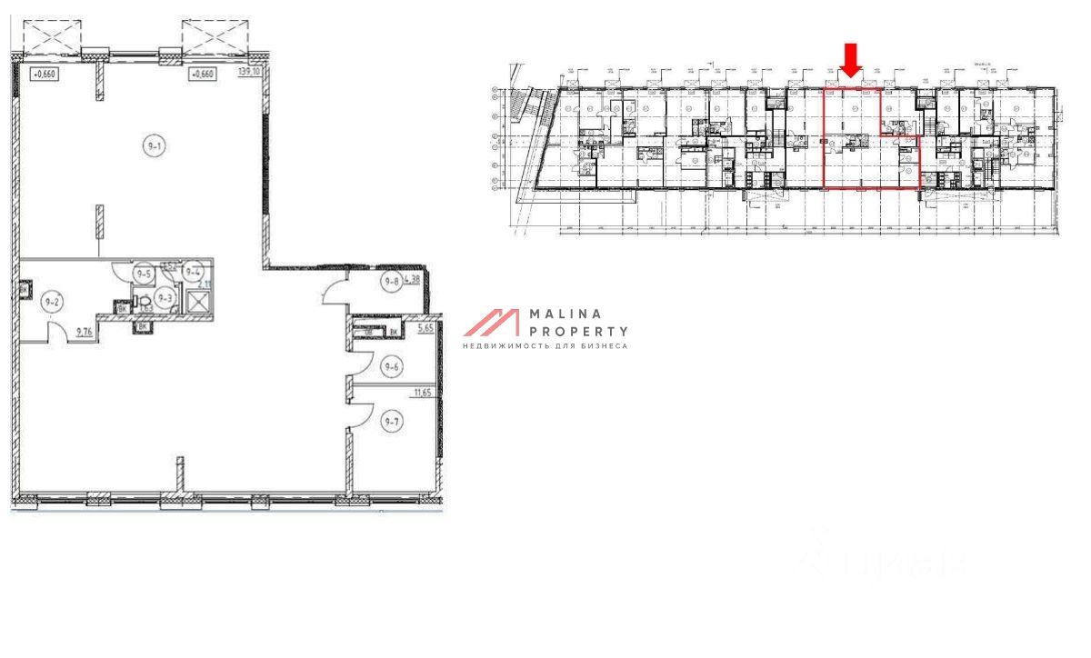
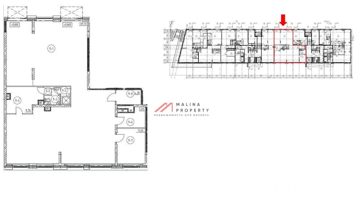
Продажа торгового помещения 177,7 м2 в ЖК ''Nagatino I-Land'' на проспекте Лихачева, д. 20 (5 минут пешком от метро Технопарк). 1 линия домов.
Помещение 177,7 м2 располагается на 1 этаже, открытая планировка, отдельный вход с фасада , высота потолка 5,1 м, витринные окна по фасаду. Электрическая мощность 200 кВт. Парковка перед фасадом. Место для размещения рекламы.
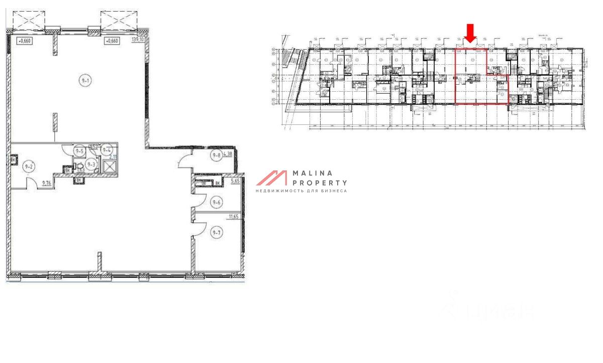
Продажа торгового помещения 177,7 м2 в ЖК ''Nagatino I-Land'' на проспекте Лихачева, д. 20 (5 минут пешком от метро Технопарк). 1 линия домов.
Помещение 177,7 м2 располагается на 1 этаже, открытая планировка, отдельный вход с фасада , высота потолка 5,1 м, витринные окна по фасаду. Электрическая мощность 200 кВт. Парковка перед фасадом. Место для размещения рекламы.
Помещение располагается на первой линии нового жилого квартала ''Nagatino-i-land'',прямой выход на основную улицу огромного жилого массива с численностью населения более 12 тысяч человек, также рядом с помещением располагаются огромный бизнес-парк, в котором, находятся офисы крупных банков и компаний, таких как: ''Альфа-банк'', ''Raiffeisen'', ''Unicredit'', ''МТС-банк'', ''МТС'', ''Segezha group'', ''Кронштадт'', ГК ''Эталон'' и другие. Ввод дома в эксплуатацию октябрь 2022г. (корпус 1).
Прямая продажа от собственника.
Стоимость продажи 86 579 704 рублей. Без комиссии.