сдам офисное помещение, Академика Королева, 12171 783 ₽ в месяц
6 ноя
Дата публикации объявления
Обн. сегодня
Дата обновления объявления
1
Количество просмотров (+ просмотры за сегодня)
1833 ₽/м² в месяц
Параметры
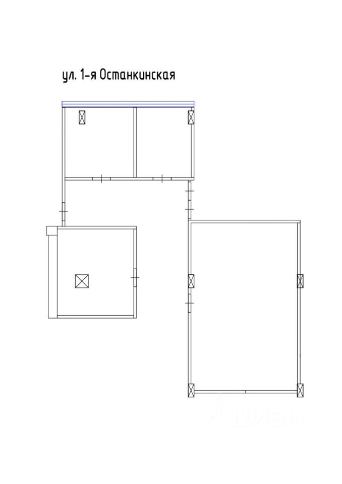
Общая площадь93,7 м2
Этаж1
Предлагаются в аренду помещения в Телецентре ''ОСТАНКИНО'' по адресу: г. Москва, ул. Академика Королёва, д. 12.
Площади: от 30 до 2000 м². Типы помещений: офисные блоки и технологические помещения. Ставка аренды за офис: 22 000 руб. за 1 кв.м. в год (не вкл. НДС, эксплуатационные расходы и коммунальные платежи). Варианты отделки: turnkey, built to suit, fit out. Срок аренды: от трех лет.
Предлагаются в аренду помещения в Телецентре ''ОСТАНКИНО'' по адресу: г. Москва, ул. Академика Королёва, д. 12.
Площади: от 30 до 2000 м². Типы помещений: офисные блоки и технологические помещения. Ставка аренды за офис: 22 000 руб. за 1 кв.м. в год (не вкл. НДС, эксплуатационные расходы и коммунальные платежи). Варианты отделки: turnkey, built to suit, fit out. Срок аренды: от трех лет.
Преимущества: • Телецентр легендарный объект на карте города, визитная карточка Москвы • Статус объекта ''Технопарк Москвы'' • Федеральная форма собственности надежность и прозрачность сделок • Юридическое сопровождение на всех этапах работы • Персональный менеджмент, быстрая калькуляция, дополнительные сервисы
Особенности объекта: гибкая конфигурация офисных блоков, собственные зоны парковки, пропускная система и эксплуатация 24/7, автоматическое пожаротушение, собственный дата-центр, приточно-вытяжная вентиляция, мультизональные системы кондиционирования, точки питания, магазины, зоны рекреации, банки, службы быта и сервисов, лифты с системой интеллектуального распределения пассажиропотоков, зарядка электромобилей.
Безопасность: Росгвардия + охранное предприятие.
Транспортная доступность: 10 минут на машине от ТТК, 10 минут пешком от метро ''Бутырская'', 5 минут пешком от МЦД-3 ''Останкино''.. ID помещения 147591