сдам офисное помещение, Пресненская набережная, 6 ст212 500 000 ₽ в месяц
6 ноя
Дата публикации объявления
Обн. сегодня
Дата обновления объявления
1
Количество просмотров (+ просмотры за сегодня)
4166 ₽/м² в месяц
Параметры
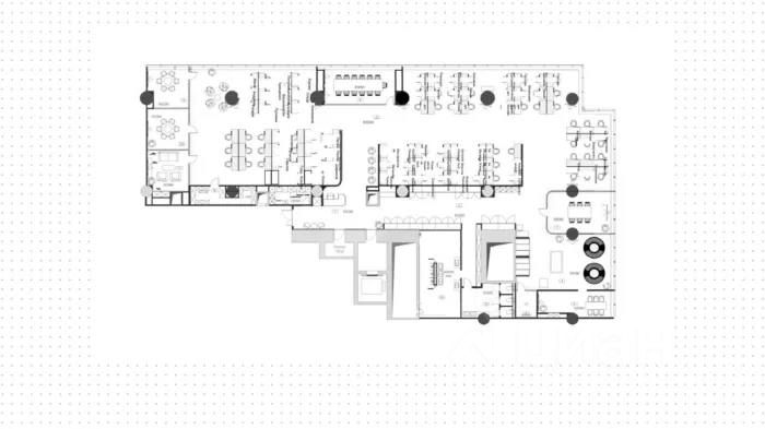
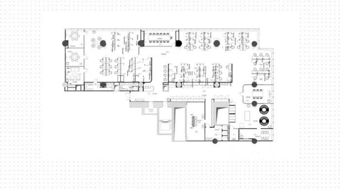
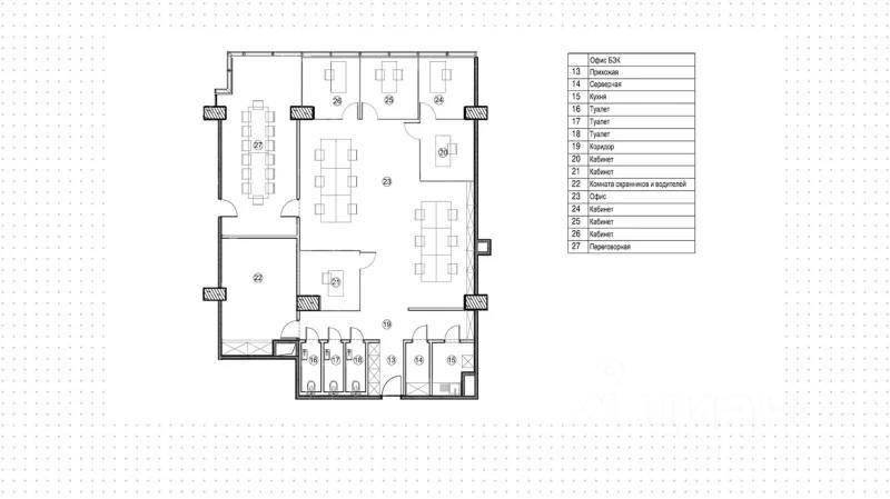
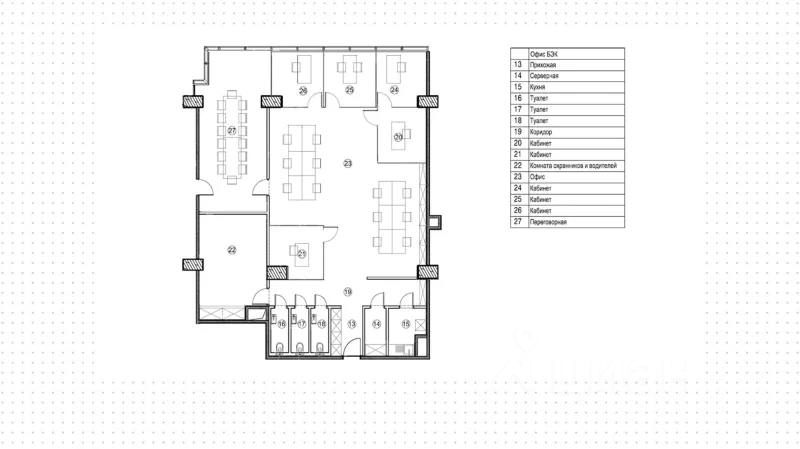
Общая площадь3000 м2
Этаж15 или выше
Год постройки2011
Презентабельные офисные пространства с дизайнерской отделкой.
-Функциональная смешанная планировка с удобными кабинетами. -Офисы частично меблированы, возможна полная комплектация мебелью при необходимости по запросу арендатора. -Все коммуникации в идеальном состоянии. -Ремонт высокого уровня. -Панорамное остекление с видом на Москву-реку, Набережную и башни Москва-Сити. -Ставка не включает переменную часть расходов.
Добираться до ''Башни Империя'' удобно на любом виде транспорта: - Удобный съезд с Третьего транспортного кольца - Подземное сообщение со станциями метро ''Деловой центр'', ''Выставочная'', ''Международная'' - Платформа ''Деловой центр'' Московского центрального кольца.
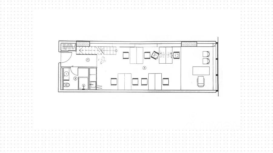
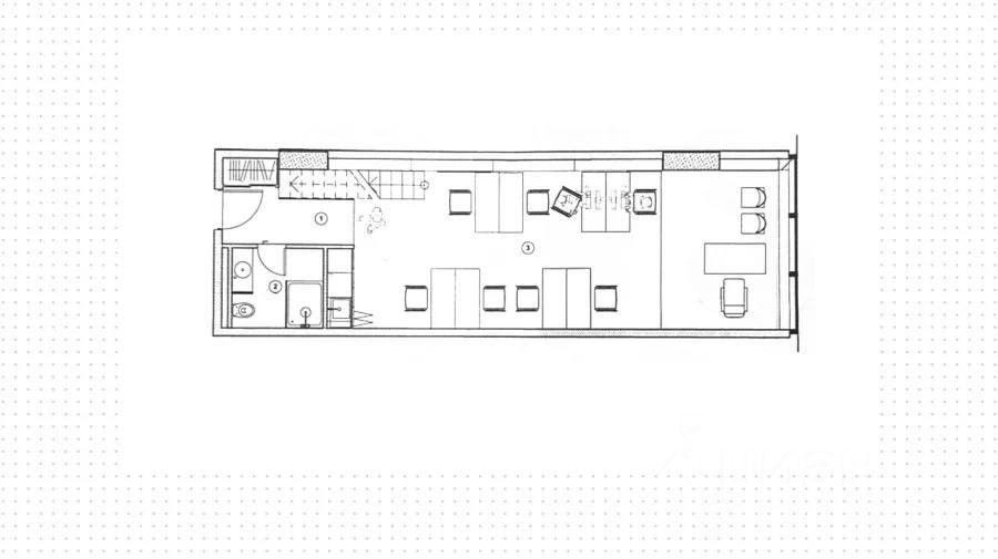
Презентабельные офисные пространства с дизайнерской отделкой.
-Функциональная смешанная планировка с удобными кабинетами. -Офисы частично меблированы, возможна полная комплектация мебелью при необходимости по запросу арендатора. -Все коммуникации в идеальном состоянии. -Ремонт высокого уровня. -Панорамное остекление с видом на Москву-реку, Набережную и башни Москва-Сити. -Ставка не включает переменную часть расходов.
Добираться до ''Башни Империя'' удобно на любом виде транспорта: - Удобный съезд с Третьего транспортного кольца - Подземное сообщение со станциями метро ''Деловой центр'', ''Выставочная'', ''Международная'' - Платформа ''Деловой центр'' Московского центрального кольца. Высокоскоростные лифты, развитая инфраструктура, самое удобное расположение к метро.