Термин "Чистая продажа" означает, что в квартире никто не прописан или
есть куда выписаться и вывезти вещи. Это лучший вариант для покупателя.
Вероятность срыва сделки минимальна.
Предлагаем роскошную трехкомнатную квартиру без отделки в новом клубном доме, признанном памятником архитектуры и имеющем более чем вековую историю - в ЖК ''Абрикосов'', расположенном в самом сердце столицы.
Преимущества: - Настоящий дровяной камин, - Высокие потолки - 3,3 м, - Толстые кирпичные стены и широкие подоконники, - Эффективное планировочное решение, которое можно подстроить под себя, а также (благодаря отсутствию отделки) оформить в стиле, близком именно Вам!
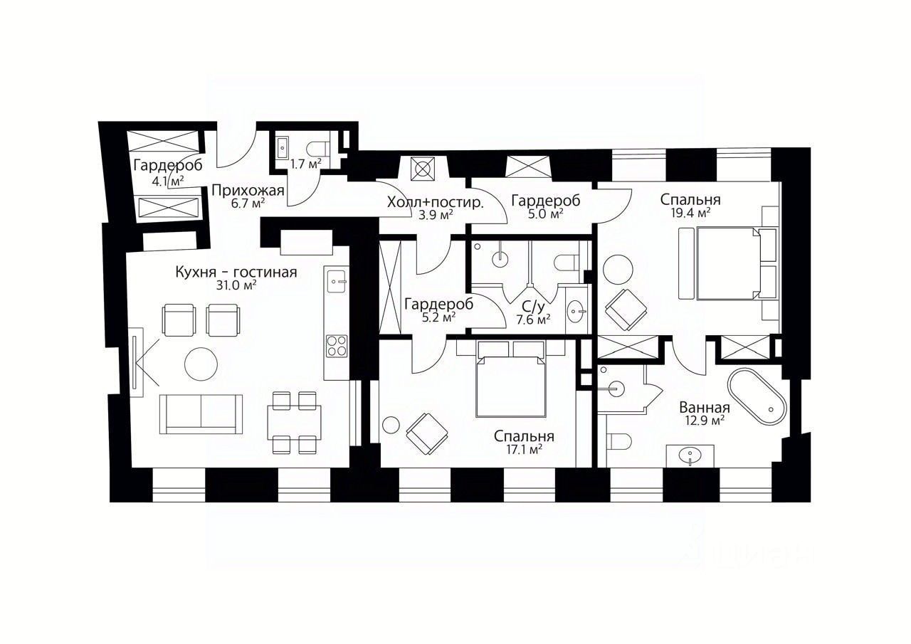
Просторная и светлая кухня-гостиная с настоящим дровяным камином, создающим теплую и уютную атмосферу, располагает к приятному общению. Функциональная планировка квартиры включает в себя разделение на две зоны: спальную и гостевую.
Предлагаем роскошную трехкомнатную квартиру без отделки в новом клубном доме, признанном памятником архитектуры и имеющем более чем вековую историю - в ЖК ''Абрикосов'', расположенном в самом сердце столицы.
Преимущества: - Настоящий дровяной камин, - Высокие потолки - 3,3 м, - Толстые кирпичные стены и широкие подоконники, - Эффективное планировочное решение, которое можно подстроить под себя, а также (благодаря отсутствию отделки) оформить в стиле, близком именно Вам!
Просторная и светлая кухня-гостиная с настоящим дровяным камином, создающим теплую и уютную атмосферу, располагает к приятному общению. Функциональная планировка квартиры включает в себя разделение на две зоны: спальную и гостевую. Наличие восьми окон (включая ванную комнату) гарантирует обилие света и воздуха.
Планировка может предусматривать следующие помещения: - Кухня-гостиная с камином - 31 кв.м - Мастер-спальня с санузлом и гардеробной - 32,3 кв.м - Спальня/детская с санузлом, гардеробной и рабочей зоной - 32,4 кв.м - Холл-постирочная, прихожая - 16 кв.м - Гардеробная для верхней одежды - Гостевой санузел.
Можно организовать пространство и иным, более удобным для Вас образом, с учетом индивидуальных предпочтений. Свободная планировка квартиры и отсутствие отделки открывают широкий простор для творчества и дают возможность реализовать любые дизайнерские идеи.
Инженерно-техническое оснащение: Приточно-вытяжная вентиляция с механическим побуждением производства CLIVET S.p.A. (Италия). Кондиционирование на базе фреоново-водняных мультизональных систем чиллер-фанкойл производства компании Daikin (Япония). Поквартирные тепловые станции готовят воду необходимых параметров для систем отопления, ГВС и теплый пол.
Система очистки воды удаляет более 99% примесей (применены метод ионного обмена для умягчения воды, обратного осмоса для удаления солей органических веществ и микроорганизмов). Вводно-распределительные устройства оснащены оборудованием компании Schneider Electric, Zucchini. Лифты Компании Kone (Финляндия). Отделка кабин по индивидуальному проекту. В доме оборудован высокотехнологичный автоматический паркинг на 56 машиномест.
Окружение: Дом находится в 100 метрах от знаменитых Чистых прудов, в одном из самых романтичных и престижных районов Москвы. Он расположен в тихом Потаповском переулке, в глубине квартала. Всего в 700 метрах от дома расположен лицей НИУ ВШЭ, занимающий первое место в рейтинге московских школ. В пешей доступности 7 корпусов и 6 факультетов ВШЭ, которая занимает первое место в рейтинге вузов страны.
Четыре театра в нескольких минутах ходьбы: Современник, Московский театр Олега Табакова, Et Cetera, Большой театр. В районе много зелени, рядом расположены три парка (Новый парк ''Горка'' - 800 м, ''Зарядье'' - крупнейшая парковая зона в центре - 1500 м, Сад культуры и отдыха им Н.Э Баумана - 1800 м) и несколько скверов.
Сотрудничаем с агентами 50/50.
Винидиктов и Партнеры - участник Ассоциации Агентств Элитной Недвижимости AREA!