сдам офисное помещение, Снежная, 261 854 000 ₽ в месяц
31 окт
Дата публикации объявления
Обн. 22 мая
Дата обновления объявления
2
Количество просмотров (+ просмотры за сегодня)
3000 ₽/м² в месяц
Параметры
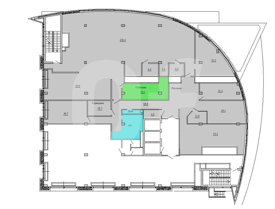
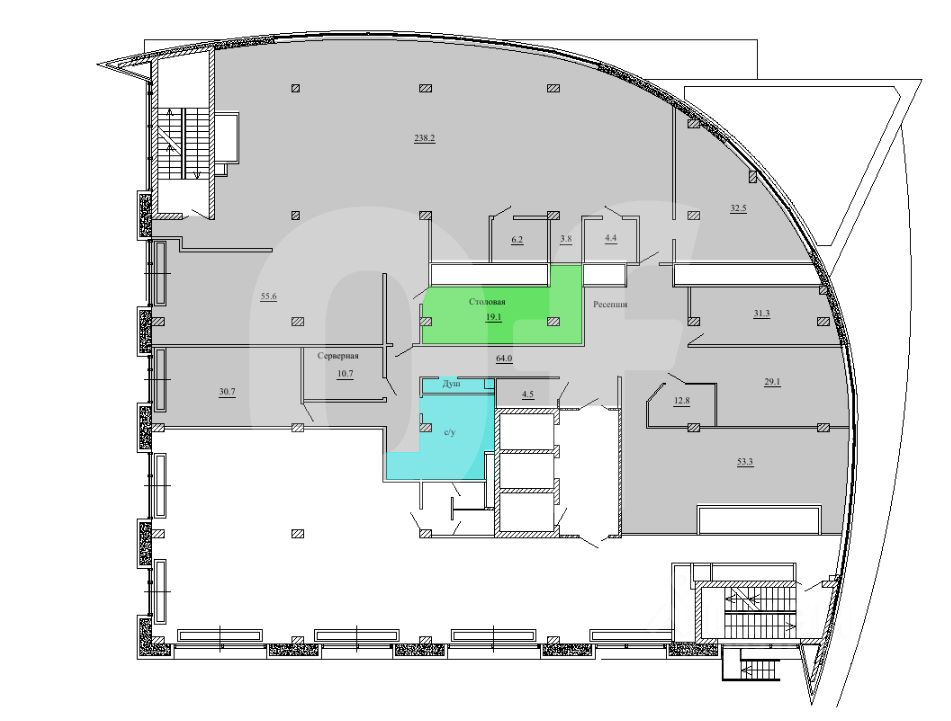
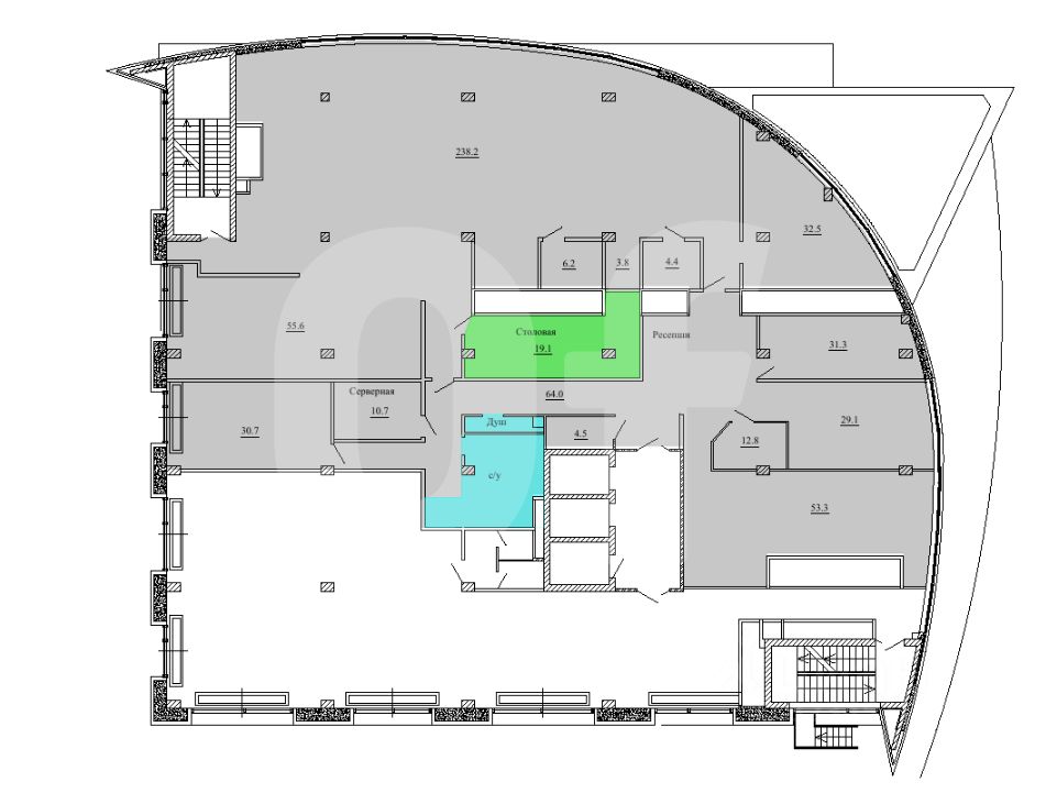
Общая площадь618 м2
Этаж6
Год постройки2012
Предлагаем в аренду офис на 52 - 137 сотрудников в торгово-офисном комплексе ''Снежная 26''. Разработаем планировку под вашу команду бесплатно с неограниченными правками.
Площадь: 618 м². Состояние: готов к въезду. Арендная плата: 1 854 000 руб./мес. Ставка: 36 000 руб./м²/год (включая эксплуатацию). Налогообложение: включая НДС. Коммунальные расходы: оплачиваются по факту. Тип аренды: прямая аренда. Этаж: 6 из 14.
Помещение с функциональной смешанной планировкой. Половина этажа, собственные санузлы, зона кухни, переговорные комнаты, зона ресепшн, серверная.
Предлагаем в аренду офис на 52 - 137 сотрудников в торгово-офисном комплексе ''Снежная 26''. Разработаем планировку под вашу команду бесплатно с неограниченными правками.
Площадь: 618 м². Состояние: готов к въезду. Арендная плата: 1 854 000 руб./мес. Ставка: 36 000 руб./м²/год (включая эксплуатацию). Налогообложение: включая НДС. Коммунальные расходы: оплачиваются по факту. Тип аренды: прямая аренда. Этаж: 6 из 14.
Помещение с функциональной смешанной планировкой. Половина этажа, собственные санузлы, зона кухни, переговорные комнаты, зона ресепшн, серверная.
Бизнес-центр ''Снежная 26'' класса B+ расположен рядом с метро Свиблово.
Удобный выезд на: СВХ, Ярославское шоссе.
Инфраструктура здания: Подземная парковка на 199 мест и наземная на 35 мест, продуктовый магазин, ресторан и кафе, торговая галерея, 8 пассажирских лифтов.
В пешей доступности: Сквер ''Знаки зодиака'', ТЦ ''Свиблово''.
Юридические адреса обслуживаются в налоговой 16.
Звоните или пишите в чат - организуем просмотр в день обращения и направим презентацию по объекту.
Бесплатно разработаем планировку под вашу команду, рассчитаем оптимальную рассадку и зонирование.
*Количество рабочих мест рассчитано автоматически: от 4,5 до 12 м² на человека. ID объекта: 64294