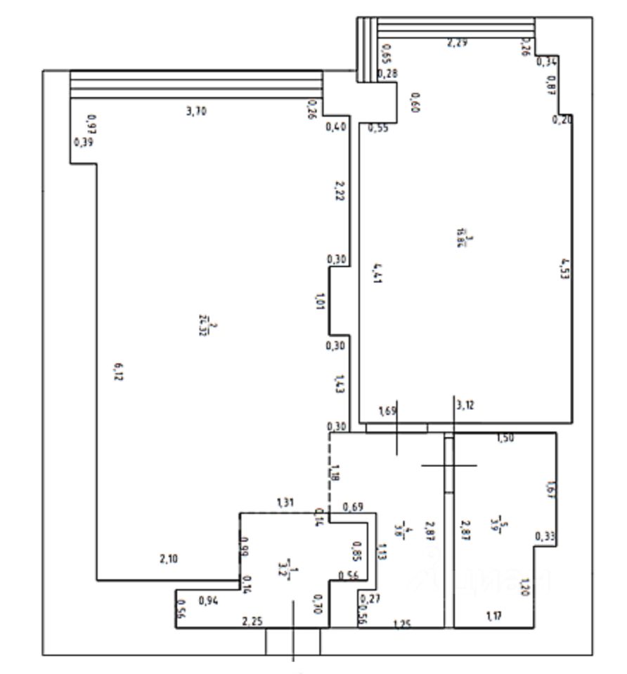
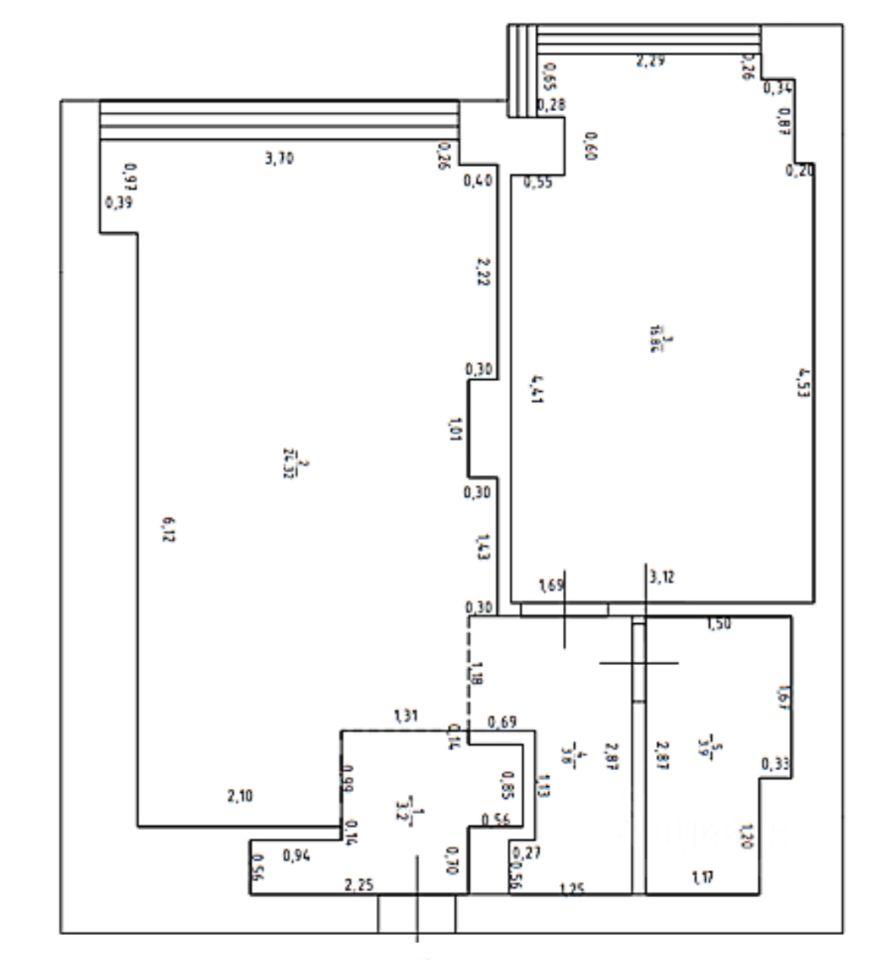
Вашему вниманию предлагается прекрасная евро 2-комнатная квартира (кухня-столовая-гостиная 24,3 кв м и отдельная спальня 17 кв м) в современном жк Поклонная 9! Престижный район! Рядом Парк Победы, Кутузовский проспект, Москва-Сити! В доме охрана, консьерж сервис, новый премиальный фитнесс клуб с бассейном! Из окон открывается вид во двор и на Сити!!! Свободная продажа! Один взрослый собственник!