Переуступка прав по рассрочке 0% до августа 2026 года, первоначальный взнос 40%, возможность использовать любые субсидированные ипотечные программы от застройщика.
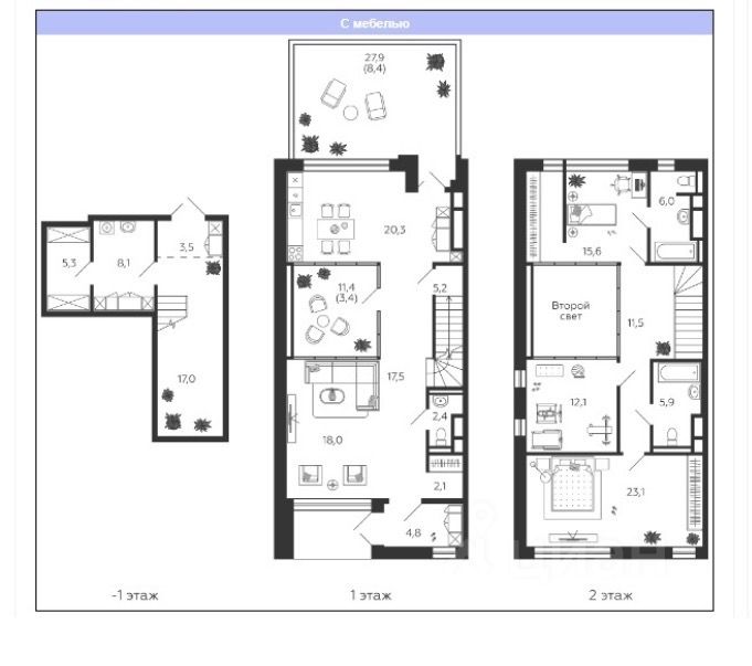
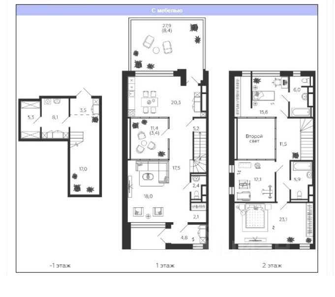
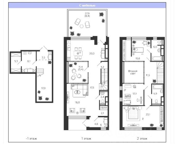
Уникальное предложение в Даниловском районе! Торцевой двухэтажный таунхаус с личным патио, подземным этажом и выходом на двухуровневую подземную парковку.
Таунхаус введён в эксплуатацию и готов к сдаче. Расположен в центре современного квартала бизнес-класса Shagal, в непосредственной близости от благоустроенной набережной Москвы-реки. Рядом — развитая инфраструктура: ЗИЛАРТ, Остров Мечты, Северный и Южный ландшафтные парки.
Планировочное решение и расположение позволяют совместить уединённость частного дома с удобством пользования общественными пространствами и всей городской инфраструктурой.











