Работаем с партнерами!
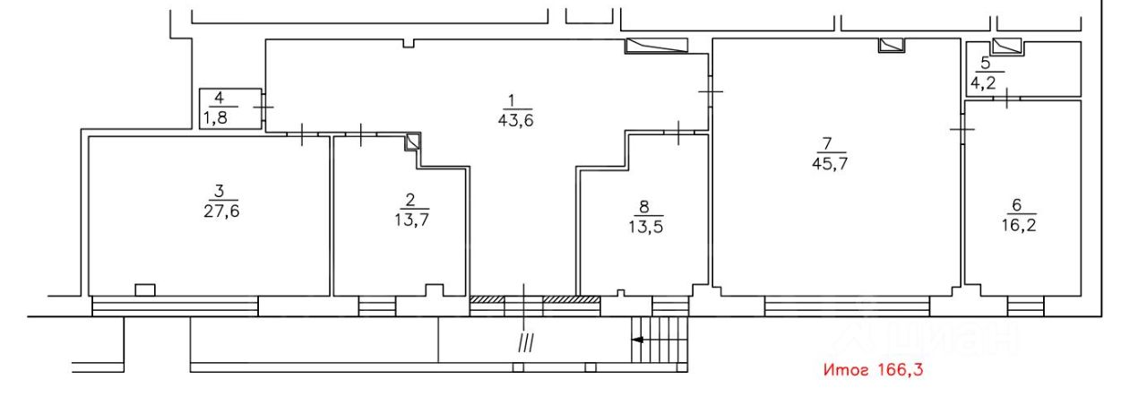
Предлагаем вашему вниманию офис общей площадью 166,3 м.кв, в элитном жилом комплексе ''Охотничья усадьба'' в самом центре старой Москвы, в переулке с многовековой историей — Сивцев Вражек.
Уютный представительский офис с отдельным входом расположен на 1 этаже.
Ремонт выполнен в классическом стиле, большие панорамные окна, центральные коммуникации, кондиционирование.
Кабинетная планировка.
Имеется 2 машино-места на наземной парковке.
Огороженная и охраняемая территория с красивыми газонами, цветниками и альпийскими горками. На территории проложены прогулочные тротуары, установлены скамейки и декоративное освещение.
Дополнительная информация по телефону. Оперативный показ.







