Сдается в аренду 3-х этажное административное здание с подвалом С класса, которое находится по адресу: ул. 1-я Рыбинская, д. 1.
Пешая доступность от станций метро Митьково, Рижская. Рядом пролегает 1-я Рыбинская улица и ТТК.
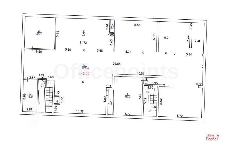
Помещения без отделки, смешанная планировка. Высoта кaждoгo этaжa 3 м. Естественная система вентиляции, сплит-система. Наземная парковка.
Арендные каникулы и ставка подлежат обсуждению.
Звоните прямо сейчас и мы согласуем точное время показа в удобное для Вас время, отправим план помещения и ответим на ключевые вопросы по офису!












