Предлагаю квартиру в комплексе бизнесс-класса, в одном из самых зеленых районов на Юго-Западе города Москвы.
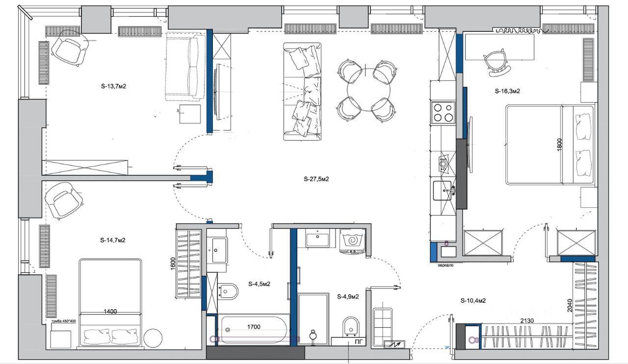
Редкий формат квартиры с панорамными окнами, отличная планировка, закрытая благоустроенная территория (двор без машин), подземный паркинг, шикарная отделка мест общего пользования, окна на ЮГ, whaite box, возможно реализовать свой дизайн в квартире.
Многие соседи в комплесе уже сделали ремонт и живут.
На 39-ом этаже комплекса расположенна веранда с видом на МГУ для жильцов, в холле удобное лобби с детской игровой зоной. Круглосуточный консьерж сервис, охрана.
Квартира продается по Договору кули-продажи, один владелец, материнский капитал не использовался, переуступок не было. Ключи на руках, просьба на показы договариваться заранее.










