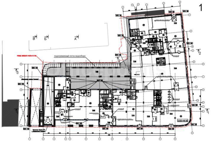
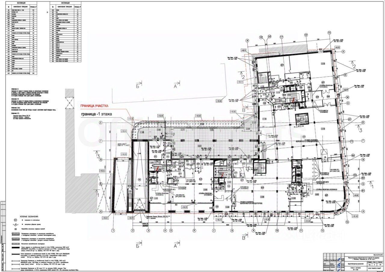
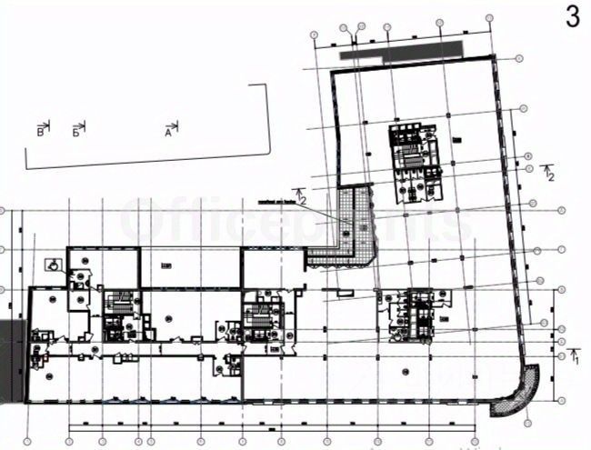
Сдается 7-этажный бизнес-центр А класса, который находится по адресу: ул. Тверская, д. 24.
Шаговая доступность от станций метро Маяковская, Тверская, Пушкинская. Удобный выезд на Садовое и Бульварное кольцо.
Помещения под чистовую отделку, смешанная планировка. Центральная система кондиционирования и приточно-вытяжная система вентиляции. В наличии наземная парковка.
Арендные каникулы и ставка подлежат обсуждению.




































