Продам готовый арендный бизнес у метро! Прямая видимость и активный пешеходный поток — рядом наземный переход, соединяющий жилой массив с сетевым магазином Чижик. Парковка напротив входа, удобный подъезд и чёткий трафик.
Окружение: По соседству — автобизнес, центр карате, офисные помещения и бизнес-центр, что формирует стабильный поток офисных сотрудников и посетителей.
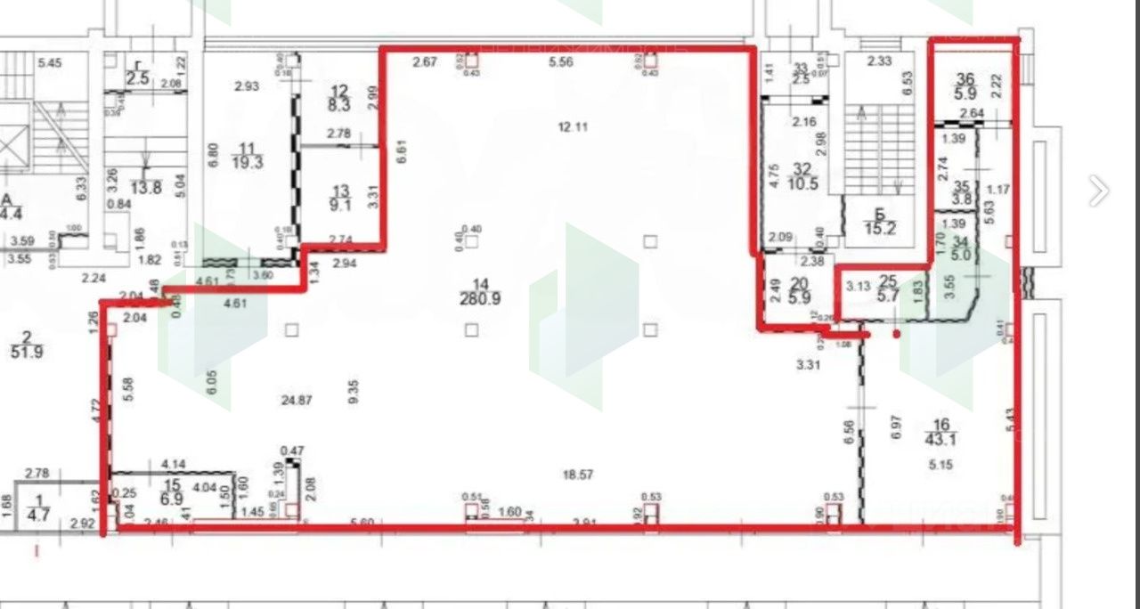
Характеристики помещения: Общая площадь: 351,3 м² Формат: готовый арендный бизнес Вход: отдельный, с первой линии Парковка: напротив помещения Юридический статус: помещение оформлено на ООО
Арендатор: федеральная сеть продуктовых магазинов Чижик договор аренды заключён в мае 2025 года сроком на 10 лет Арендная ставка: 580 000 ?
Продам готовый арендный бизнес у метро! Прямая видимость и активный пешеходный поток — рядом наземный переход, соединяющий жилой массив с сетевым магазином Чижик. Парковка напротив входа, удобный подъезд и чёткий трафик.
Окружение: По соседству — автобизнес, центр карате, офисные помещения и бизнес-центр, что формирует стабильный поток офисных сотрудников и посетителей.
Характеристики помещения: Общая площадь: 351,3 м² Формат: готовый арендный бизнес Вход: отдельный, с первой линии Парковка: напротив помещения Юридический статус: помещение оформлено на ООО
Арендатор: федеральная сеть продуктовых магазинов Чижик договор аренды заключён в мае 2025 года сроком на 10 лет Арендная ставка: 580 000 ? в месяц (включая НДС) Индексация: 5% ежегодно Коммунальные платежи: оплачиваются арендатором отдельно
Преимущества объекта: стабильный федеральный арендатор долгосрочный договор понятный пешеходный и офисный трафик высокая ликвидность локации
Объект юридически чист и готов к сделке. Торг и условия обсуждаются при встрече. 117-103239