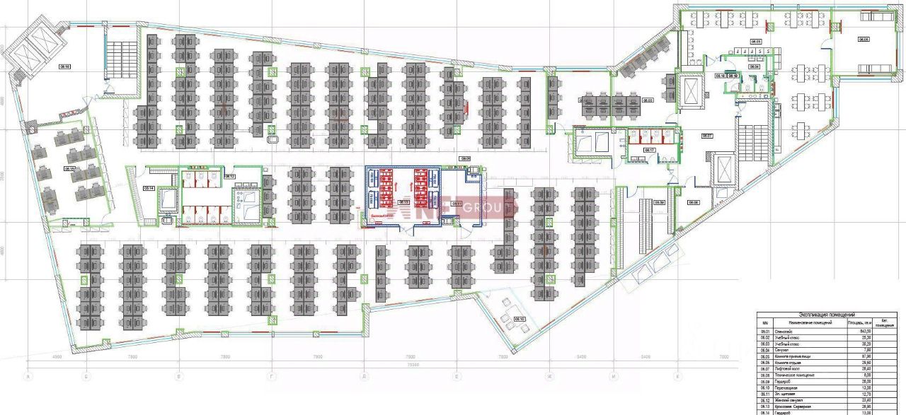
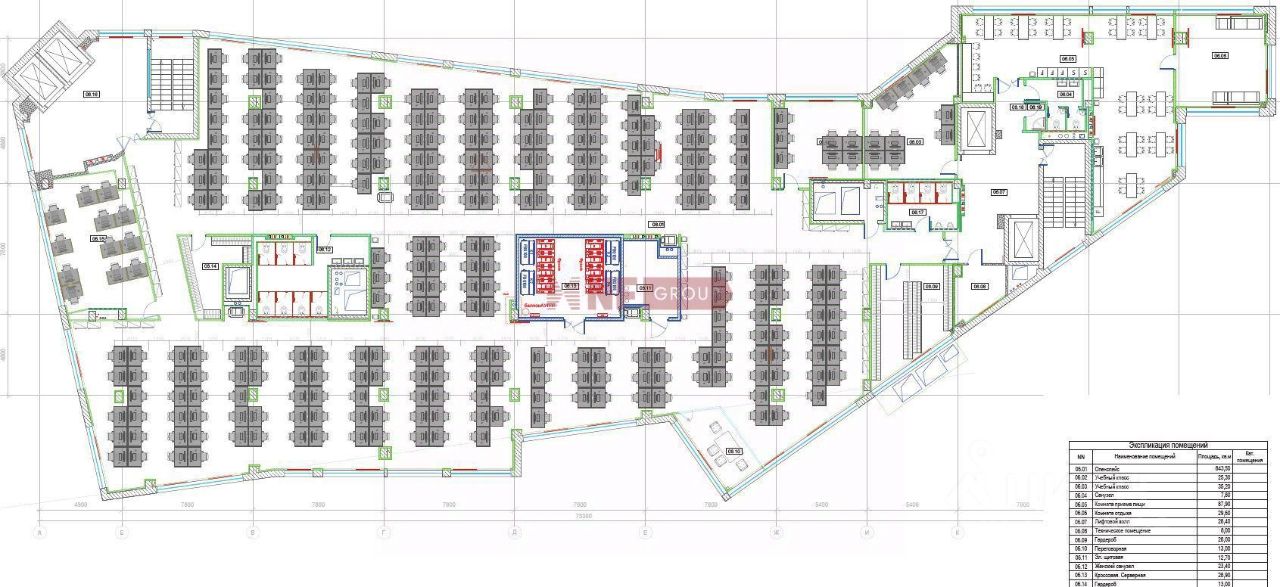
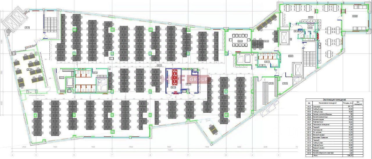
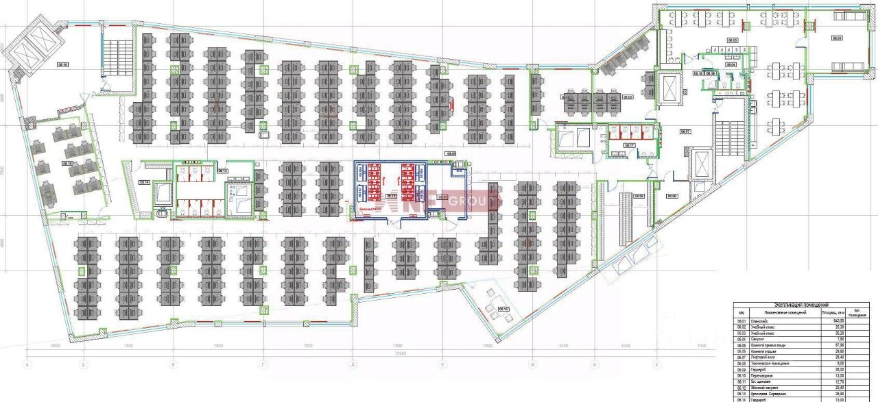
Лот: 20502pd. Бизнес-парк представляет собой комплекс офисных зданий класса В, расположенный в Северном районе Москвы. Удобный доступ на Ленинградский пр-т, Дмитровское шоссе и Третье транспортное кольцо. Ближайшая станция метро Дмитровская, располагается в 12 минутах ходьбы. Офисный центр в стиле ''хай-тек'' имеет эффективную организацию офисного пространства и развитую инфраструктуру.