Если цена в объявлении изменится, мы сразу сообщим вам об этом на электронную почту.
Нажимая «Подписаться», вы соглашаетесь с правилами.
продам 2-к, Винокурова, 12 корп. 116 900 000 ₽
23 сен
Дата публикации объявления
Обн. 9 дек
Дата обновления объявления
4
Количество просмотров (+ просмотры за сегодня)
382 353 ₽/м²
Чистая продажа
Термин "Чистая продажа" означает, что в квартире никто не прописан или
есть куда выписаться и вывезти вещи. Это лучший вариант для покупателя.
Вероятность срыва сделки минимальна.
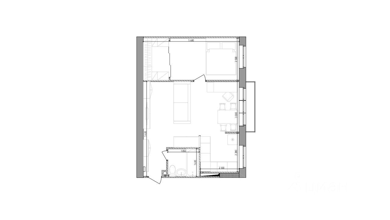
Вашему вниманию предлагается отличная двухкомнатная квартира с дизайнерским ремонтом, укомплектованная всй необходимой мебелью и техникой для комфортного проживания, в престижном районе Москвы. Удобная планировка: совмещенная кухня и гостиная, совмещенный санузел, гардеробная комната в спальне с раздвижными дверьми оборудована системой для хранения вещей.
В 2019 году в квартире был сделан капитальный ремонт, установлены новые окна, натяжные потолки, полная замена электропроводки, сантехники, замена настенных и напольных покрытий в основных помещениях. Современный интерьер, выполненный в светлых цветах с добавлением ярких акцентов. Мебель и декор подобраны в едином стиле.
Вашему вниманию предлагается отличная двухкомнатная квартира с дизайнерским ремонтом, укомплектованная всй необходимой мебелью и техникой для комфортного проживания, в престижном районе Москвы. Удобная планировка: совмещенная кухня и гостиная, совмещенный санузел, гардеробная комната в спальне с раздвижными дверьми оборудована системой для хранения вещей.
В 2019 году в квартире был сделан капитальный ремонт, установлены новые окна, натяжные потолки, полная замена электропроводки, сантехники, замена настенных и напольных покрытий в основных помещениях. Современный интерьер, выполненный в светлых цветах с добавлением ярких акцентов. Мебель и декор подобраны в едином стиле. Продуманная система хранения: шкафы и тумбы, раскладной мягкий диван, двуспальная кровать, раздвижной обеденный стол на 4-8 персон, рабочая зона с письменным столом и просторная кухня, на которой удобно готовить вдвоем.
Современная техника на кухне: холодильник Hotpoint, встроенная духовка Electrolux, варочная плита Hansa, вытяжка. Вся мебель и техника в отличном состоянии. Окна выходят на юго-запад, в квартире всегда светло и солнечно. Застекленная в пол дверь на балкон в гостиной дает еще больше визуального простора. На французском балконе пол выстелен керамогранитом, сделан новый прочный козырек. Зеленый двор, при этом высокий этаж обеспечивает широкий обзор, не закрытый кронами деревьев. Красивые рассветы и закаты. По центру детские и спортивные площадки, всегда есть места для парковки.
В доме хорошая тепло- и звуко-изоляция. Также приятные и тихие соседи со всех сторон. В 2027 году будет капитальный ремонт дома: подъездов, фасада и крыши. Удобное трансортное сообщение: до м. Академическая 10 мин пешком, в 2025 году открытие дополнительной пересадочной станции, станция МЦД Крымская в 17 мин пешком. Также прямо за домом есть автобусная остановка с 4-мя маршрутами и рядом остановка трамваев. Вокруг дома высокоразвитая инфраструктура: в пешей доступности магазины, кафе, рестораны, новые муниципальные взрослые и детские поликлиники, школы и детские садики, фитнес-клубы. Район славится своими зелеными аллеями и парками. Полная стоимость в договоре, 2 взрослых собственника, без обременений.