Продается коммерческое помещение свободного назначения в ЖК бизнес-класса ''Серебряный Фонтан''.
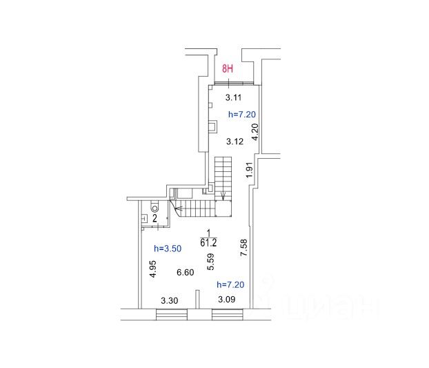
Помещение находится на 1 этаже, сделана узаконенная перепланировка: общая площадь 89 кв.м. состоит из первого этажа и антресоли. Площадь первого этажа составляет 61,2 кв.м, площадь антресоли 25,3 кв.м.
Высота потолков на антресоли 3,64м, второй свет - 7,2м.
За всеми подробностями звоните и записывайтесь на просмотр!





