Если цена в объявлении изменится, мы сразу сообщим вам об этом на электронную почту.
Нажимая «Подписаться», вы соглашаетесь с правилами.
продам 5-к, Молочный переулок, 7991 062 800 ₽
11 сен
Дата публикации объявления
Обн. сегодня
Дата обновления объявления
54
Количество просмотров (+ просмотры за сегодня)
1 697 025 ₽/м²
Чистая продажа
Термин "Чистая продажа" означает, что в квартире никто не прописан или
есть куда выписаться и вывезти вещи. Это лучший вариант для покупателя.
Вероятность срыва сделки минимальна.
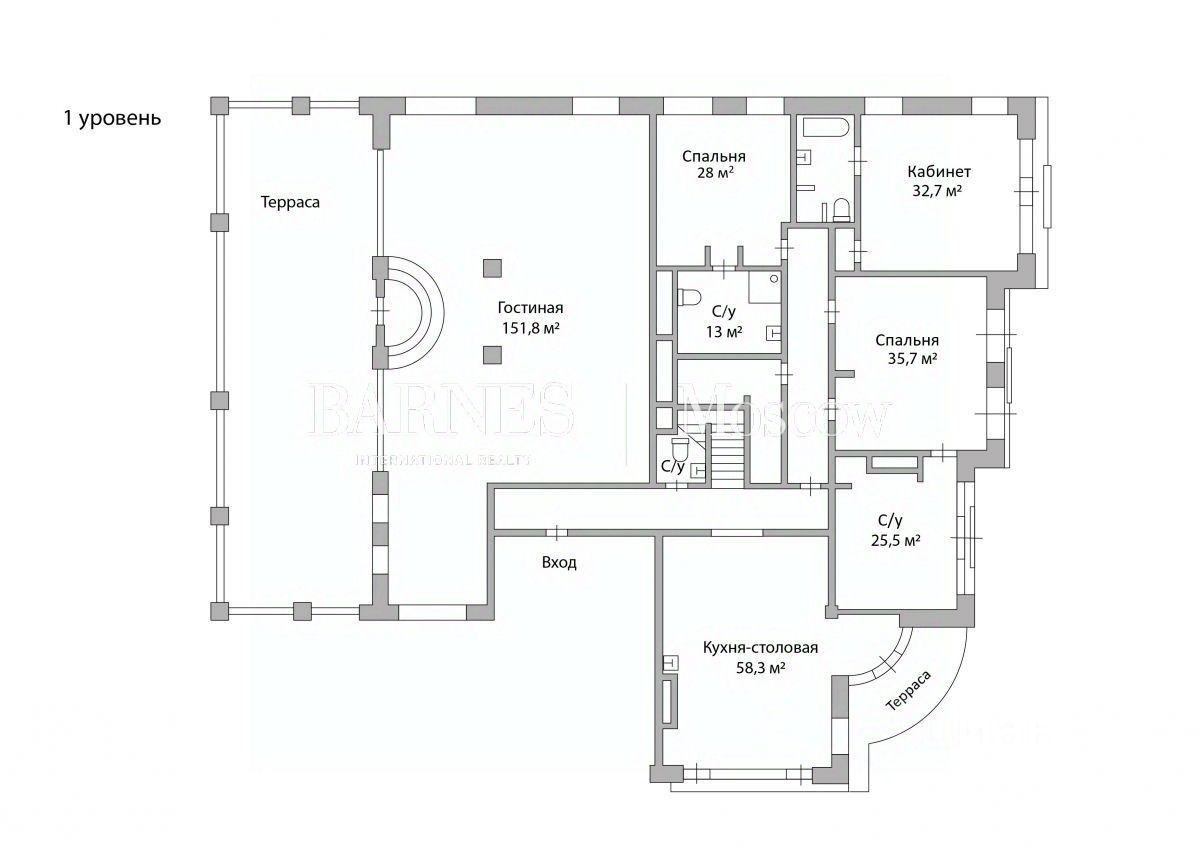
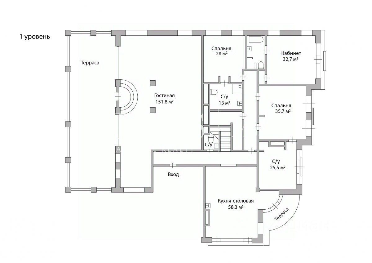
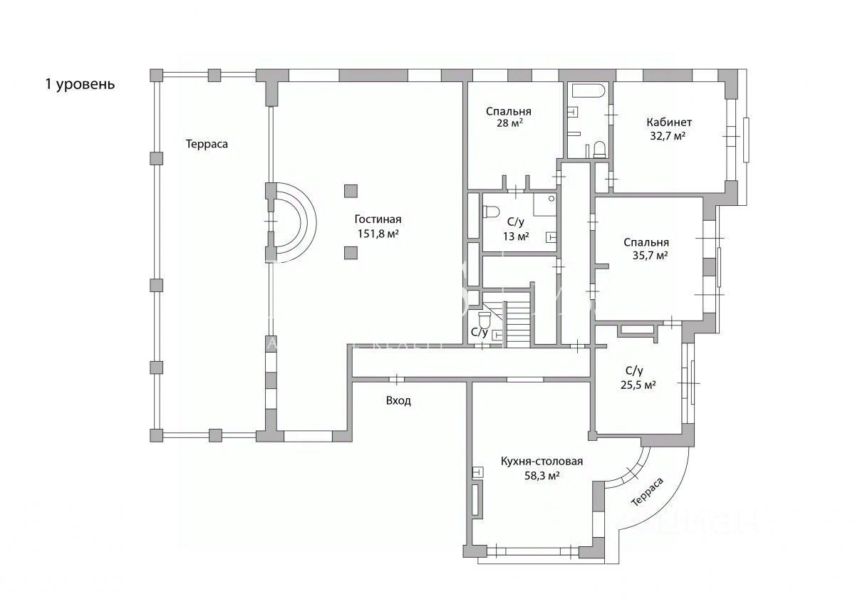
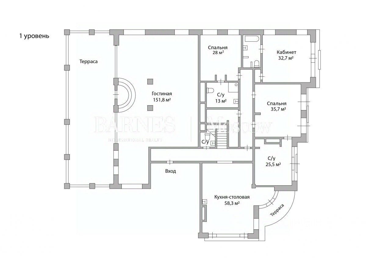
Номер объекта: 561320. ID: 561320 Видовой 2-уровневый пентхаус с камином и двумя террасами в клубном доме класса de luxe ''Молочный, 7'' на Золотой миле.
В квартире выполнена отдела с неоклассическом стиле. 1 уровень: гостиная с камином, библиотекой и выходом на большую террасу, кухня-столовая с малой террасой, 2 спальни, кабинет, 4 санузла. 2 уровень: гостиная зона, небольшая кухня, 2 спальни с санузлами и гардеробными.
Квартира меблирована, оборудована современной бытовой техникой от ведущих мировых производителей, укомплектована предметами интерьера и готова к проживанию.
Из окон открываются прекрасные виды на исторический центр Москвы, Храм Христа Спасителя. Высокие потолки 3.5м.
В клубном доме всего 7 квартир.
Номер объекта: 561320. ID: 561320 Видовой 2-уровневый пентхаус с камином и двумя террасами в клубном доме класса de luxe ''Молочный, 7'' на Золотой миле.
В квартире выполнена отдела с неоклассическом стиле. 1 уровень: гостиная с камином, библиотекой и выходом на большую террасу, кухня-столовая с малой террасой, 2 спальни, кабинет, 4 санузла. 2 уровень: гостиная зона, небольшая кухня, 2 спальни с санузлами и гардеробными.
Квартира меблирована, оборудована современной бытовой техникой от ведущих мировых производителей, укомплектована предметами интерьера и готова к проживанию.
Из окон открываются прекрасные виды на исторический центр Москвы, Храм Христа Спасителя. Высокие потолки 3.5м.
В клубном доме всего 7 квартир. Огороженная территория, подземный паркинг, многоуровневая система охраны.
Развитая инфраструктура центра столицы: рестораны и магазины Остоженки, Арбата, образовательные учреждения, музеи и картинные галереи. В пешей доступности находится Кремль, Пречистенская набережная.