Лот 156338.
В продажу предлагается Видовой офис на 52 этаже МФК ''Империя'', расположенный по адресу: (ЦАО) Пресненская набережная, д. 6 с.2. . В помещении выполнен высококачественный ремонт в современном стиле. Высокий пешеходный и автомобильный трафик, деловая активность района.
Технические характеристики:
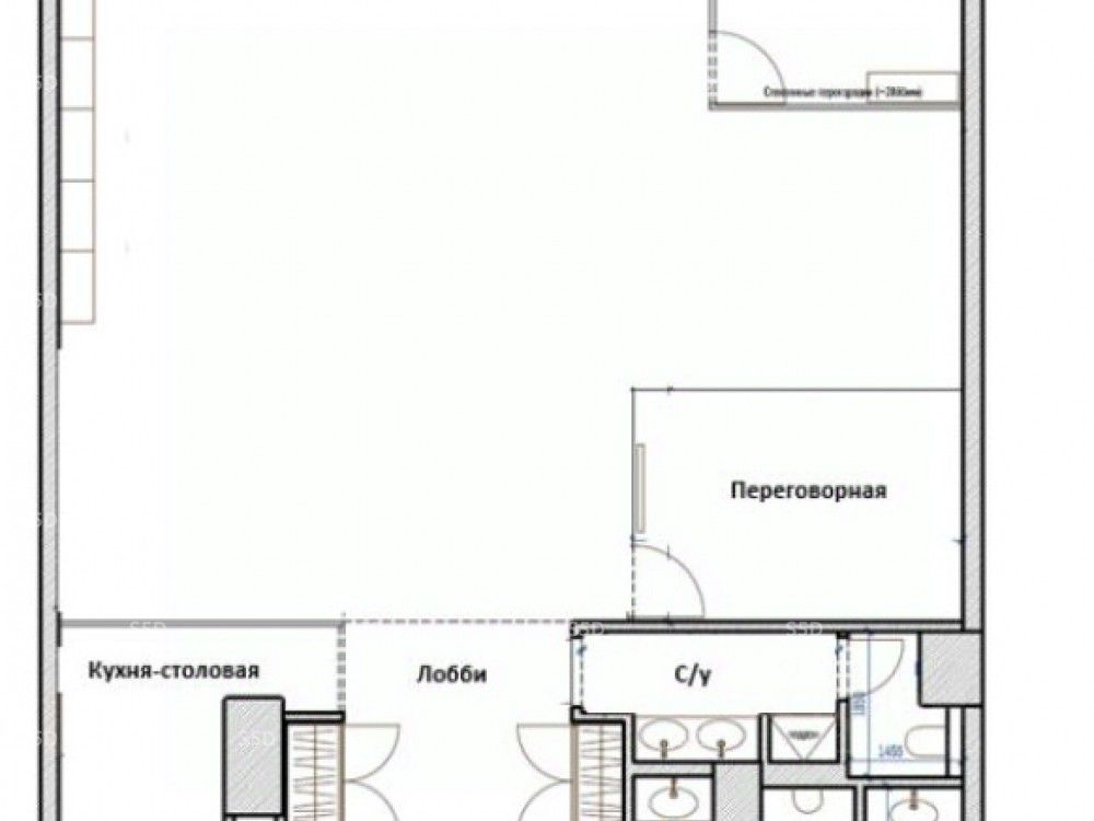
Общая площадь - 190,3м2, включает в себя : общее простаранство, зона ресепшн, 2 просторных санузла, кухню, кабинет руководителя, переговорную комнату и небольшую серверную. Дополнительно предлагается подсобное помещение на этаже , площадью 18,2м2.
Коммерческие условия:
Стоимость помещения - 247 232 559 в т.ч. НДС
Стоимость за кв.м - 1 299 173 рублей.








