сдам офисное помещение, Киевское шоссе, 22 ст5ке1 203 500 ₽ в месяц
9 сен
Дата публикации объявления
Обн. вчера
Дата обновления объявления
3
Количество просмотров (+ просмотры за сегодня)
Топ
Спецпредложение
Выделение цветом
Турбо x2
Турбо x4
Турбо x8
1208 ₽/м² в месяц
Параметры
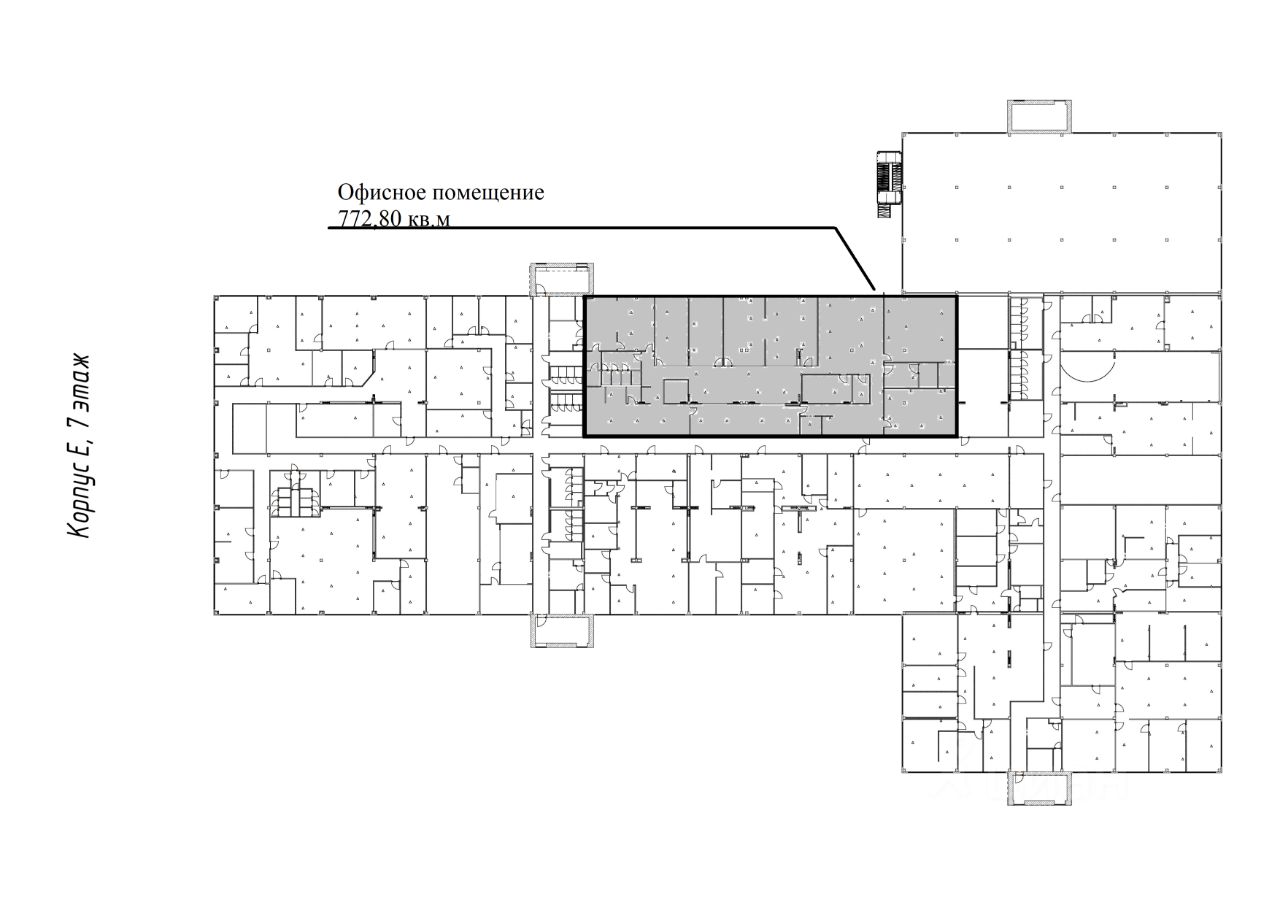
Общая площадь996 м2
Этаж8
Год постройки2008
Офисы в Бизнес-парке Румянцево, вид из окна на лес. Есть бесплатная парковка для сотрудников!
Офисы в Бизнес-парке Румянцево, вид из окна на лес. Есть бесплатная парковка для сотрудников!
Транспортная доступность: 50 м от метро ''Румянцево'' 500 метров от МКАД Близость к международному аэропорту Внуково
Преимущества: Удобная планировка: открытое пространство/ открытое пространство + несколько кабинетов, Возможность перепланировки помещения под Ваши нужды, Большая парковка для сотрудников и клиентов, Возможность заезда транспорта в здание для разгрузки/погрузки, График работы 24/7, Возможность предоставления юридического адреса