Если цена в объявлении изменится, мы сразу сообщим вам об этом на электронную почту.
Нажимая «Подписаться», вы соглашаетесь с правилами.
продам 1-к, Покрышкина, 328 500 000 ₽
9 сен
Дата публикации объявления
Обн. 13 апр
Дата обновления объявления
4
Количество просмотров (+ просмотры за сегодня)
545 977 ₽/м²
Чистая продажа
Термин "Чистая продажа" означает, что в квартире никто не прописан или
есть куда выписаться и вывезти вещи. Это лучший вариант для покупателя.
Вероятность срыва сделки минимальна.
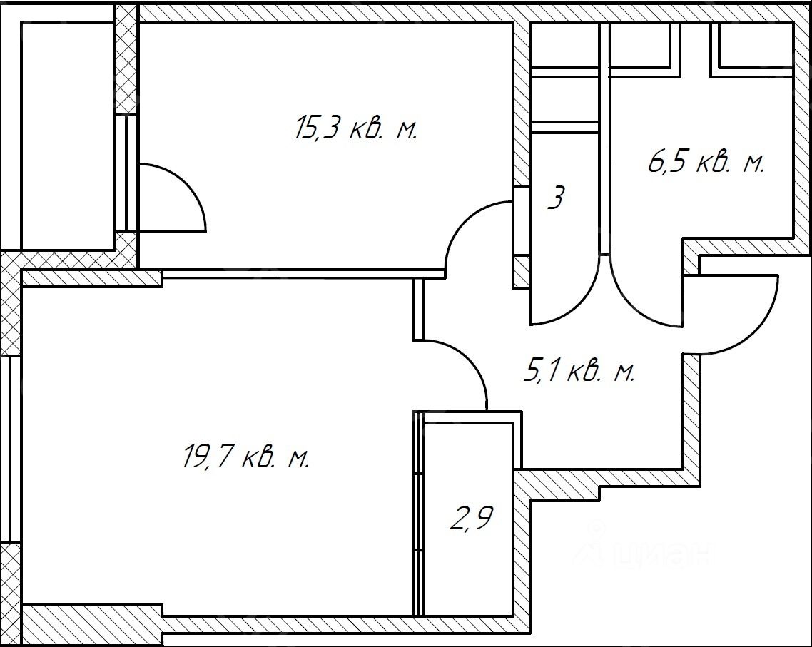
Продается евродвухкомнатная квартира 52,2 квадратных метров в престижном районе Москвы Тропарево-Никулино. Квартира оснащена всем необходимым, сделан качественный ремонт, на полу лежит паркетная доска. Дизайн квартиры выполнен в одном стиле. Просторная изолированная комната почти 20 кв.м. с большой гардеробной, где можно разместить не только вещи, но и бытовые принадлежности. Кухня-гостиная оборудована качественной светлой мебелью и техникой. Раздельный большой санузел составляют 6,5 и 2,9 кв.м..Просторный и вместительный коридор со шкафом купе. Тихие и доброжелательные соседи. 1 взрослый собственник, без обременений, свободная планировка от застройщика.
Продается евродвухкомнатная квартира 52,2 квадратных метров в престижном районе Москвы Тропарево-Никулино. Квартира оснащена всем необходимым, сделан качественный ремонт, на полу лежит паркетная доска. Дизайн квартиры выполнен в одном стиле. Просторная изолированная комната почти 20 кв.м. с большой гардеробной, где можно разместить не только вещи, но и бытовые принадлежности. Кухня-гостиная оборудована качественной светлой мебелью и техникой. Раздельный большой санузел составляют 6,5 и 2,9 кв.м..Просторный и вместительный коридор со шкафом купе. Тихие и доброжелательные соседи. 1 взрослый собственник, без обременений, свободная планировка от застройщика. Дом индивидуального проекта, состоит из двух корпусов и обслуживается ТСЖ (регулярная уборка дома и придомовой территории, сантехники и электрики приходят на вызов моментально). В подъезде и на лестничных клетках очень чисто. Работает консьерж. Проезд на придомовую территорию посторонних автомобилей ограничен, но любой собственник квартиры в доме может получить пропуск в правлении ТСЖ, поэтому на придомовой территории дома всегда можно найти свободное парковочное место. Имеется подземная паковка. Для детей оборудована детская площадка. На первом-втором этажах дома располагаются салоны красоты,фитнес-зал и спортивный комплекс с бассейном, что является большим преимуществом. У нас принято здороваться с соседями В районе ТропаревоНикулино отличная инфраструктура: в пешей доступности торговые центры, школы, муниципальные и платные медицинские центры, Тропаревский лесопарк и Парк школьников. Поблизости расположены университеты: МГИМО, РАНХиГС, МИРЭА, Академия ФСБ и др.