Если цена в объявлении изменится, мы сразу сообщим вам об этом на электронную почту.
Нажимая «Подписаться», вы соглашаетесь с правилами.
продам коттедж, 1 Маевки аллея, 615 500 000 ₽
25 авг 2025
Дата публикации объявления
Обн. сегодня
Дата обновления объявления
7
Количество просмотров (+ просмотры за сегодня)
82 888 ₽/м²
Чистая продажа
Термин "Чистая продажа" означает, что в квартире никто не прописан или
есть куда выписаться и вывезти вещи. Это лучший вариант для покупателя.
Вероятность срыва сделки минимальна.
Этажей2
Площадь участка6 соток
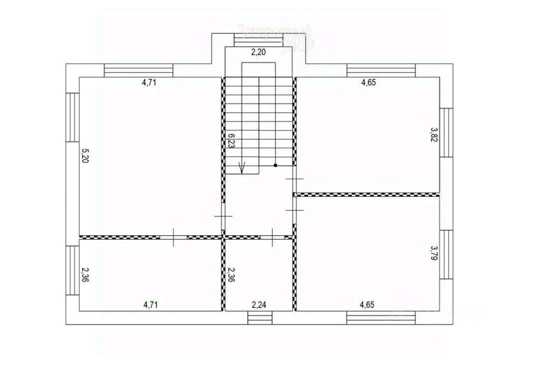
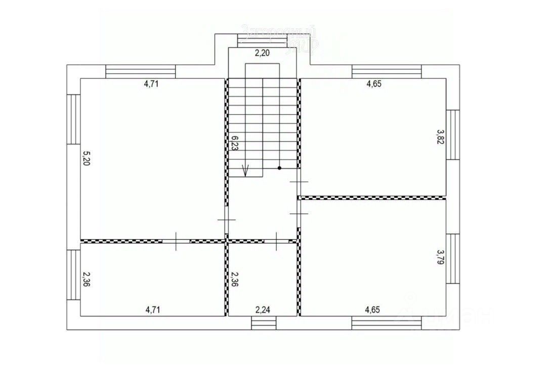
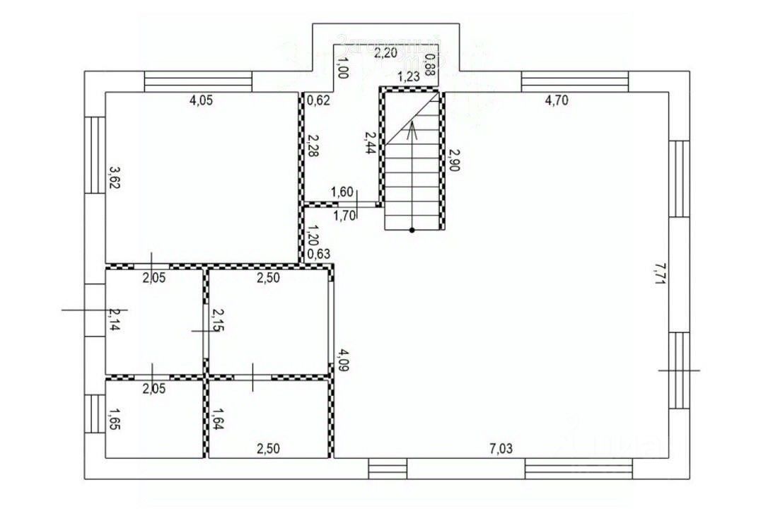
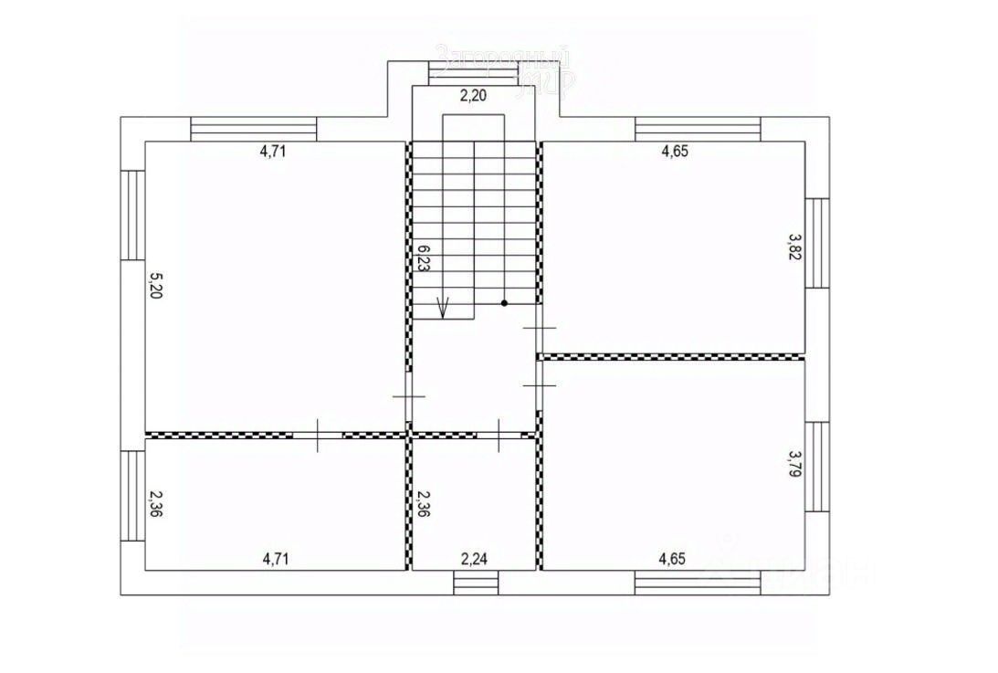
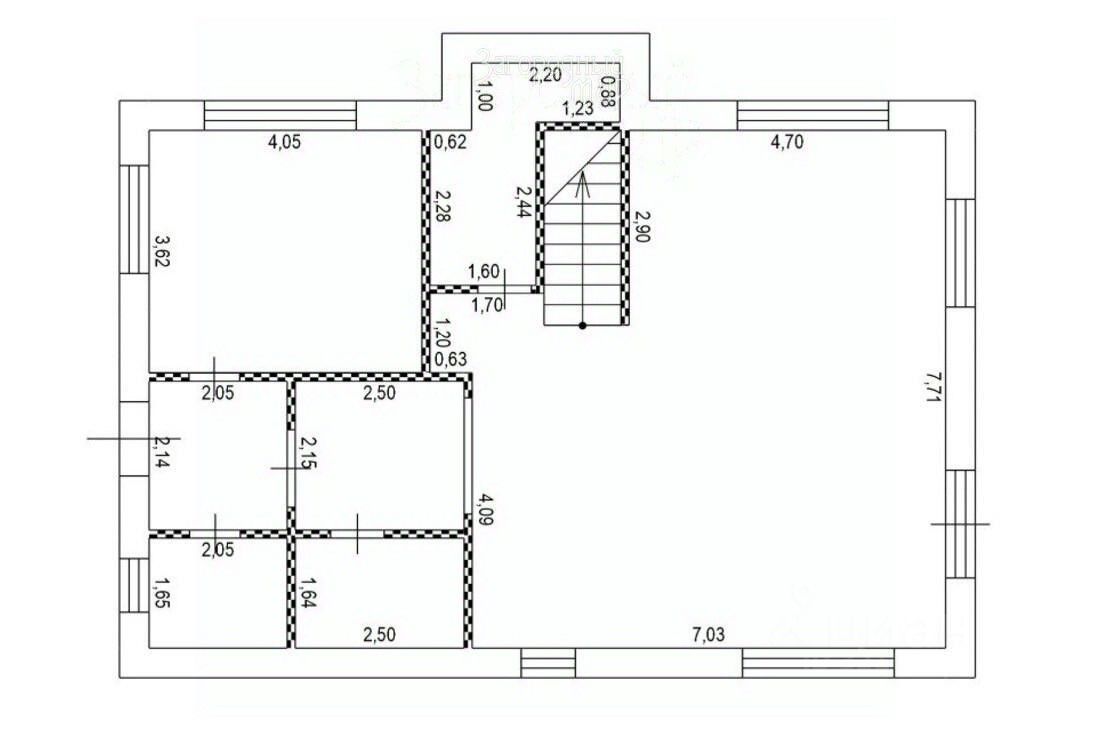
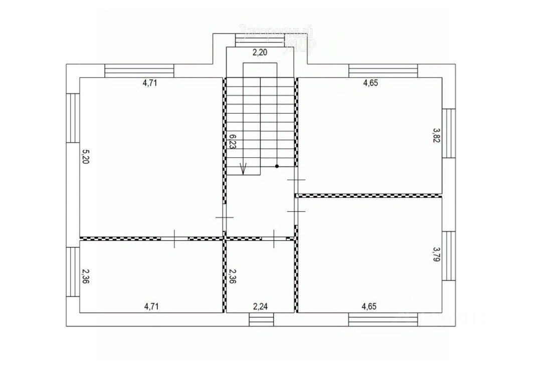
Общая площадь187 м2
Материал домакирпич
ЭлектричествоЕсть
Газоснабжениенет
Лот 68317. Шаганино. Новый красивый дом площадью 186,6 кв.м без отделки в охраняемом коттеджном поселке ''Европейская Долина-2''.
Построенный из красного керамического кирпича, внешне он отделан декоративными термопанелями с утеплителем. У дома мягкая кровля, окна стеклопакеты, железобетонные перекрытия. В доме нет перегородок, благодаря чему покупатель сможет самостоятельно распланировать планировку дома под себя.
Участок. 6 соток огорожен забором из металлического штакетника, не облагорожен. Коммуникации: электричество 15 КВт заведено в дом. Центральное водоснабжение и канализацию, а также магистральный газ возможно будет подключить.
Хорошая транспортная доступность как на личном, так и на общественном транспорте (автобусная остановка в 1 км).
Лот 68317. Шаганино. Новый красивый дом площадью 186,6 кв.м без отделки в охраняемом коттеджном поселке ''Европейская Долина-2''.
Построенный из красного керамического кирпича, внешне он отделан декоративными термопанелями с утеплителем. У дома мягкая кровля, окна стеклопакеты, железобетонные перекрытия. В доме нет перегородок, благодаря чему покупатель сможет самостоятельно распланировать планировку дома под себя.
Участок. 6 соток огорожен забором из металлического штакетника, не облагорожен. Коммуникации: электричество 15 КВт заведено в дом. Центральное водоснабжение и канализацию, а также магистральный газ возможно будет подключить.
Хорошая транспортная доступность как на личном, так и на общественном транспорте (автобусная остановка в 1 км). В 2,5 км - посёлок Щапово со всей необходимой для жизни инфраструктурой: магазины, школы, детсады, больница и т.д. Рядом лес и Щаповские пруды.