Термин "Чистая продажа" означает, что в квартире никто не прописан или
есть куда выписаться и вывезти вещи. Это лучший вариант для покупателя.
Вероятность срыва сделки минимальна.
В клубном De-luxe комплексе ''Резиденция Чистые пруды'', неподалёку от Чистопрудного бульвара, продается эксклюзивный пентхаус для большой семьи, с собственной террасой и зимним садом.
Квартира располагается на трех верхних этажах (8-10) и имеет площадь 322,6 м2, а с лоджиями и террасой - 363,1 м2. Разработанная планировка обладает уникальным дизайном, который выделяет её среди других квартир. В основе идеи лежит разделение пространства на зоны, что позволяет каждому члену семьи чувствовать себя комфортно и иметь свое личное пространство.
ПЛАНИРОВКА: 8 этаж является детской зоной, и представляя собой идеальное пространство для игр и развития детей.
В клубном De-luxe комплексе ''Резиденция Чистые пруды'', неподалёку от Чистопрудного бульвара, продается эксклюзивный пентхаус для большой семьи, с собственной террасой и зимним садом.
Квартира располагается на трех верхних этажах (8-10) и имеет площадь 322,6 м2, а с лоджиями и террасой - 363,1 м2. Разработанная планировка обладает уникальным дизайном, который выделяет её среди других квартир. В основе идеи лежит разделение пространства на зоны, что позволяет каждому члену семьи чувствовать себя комфортно и иметь свое личное пространство.
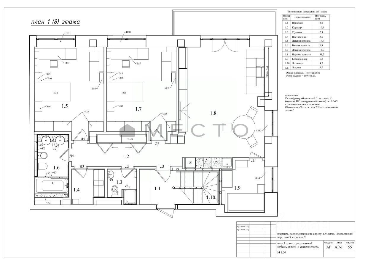
ПЛАНИРОВКА: 8 этаж является детской зоной, и представляя собой идеальное пространство для игр и развития детей. Две спальни, большая многофункциональная комната с кухней, которая обеспечивает идеальные условия для занятий и отдыха детей. Уютная комната для няни позволит ей всегда быть рядом с детьми и контролировать их безопасность и комфорт. Также на этаже вместительный санузел с ванной, гостевой сан.узел и кладовая комната.
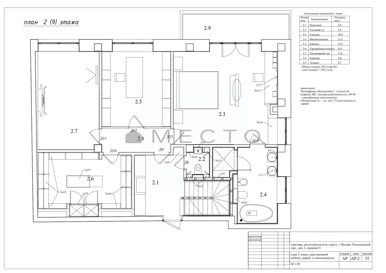
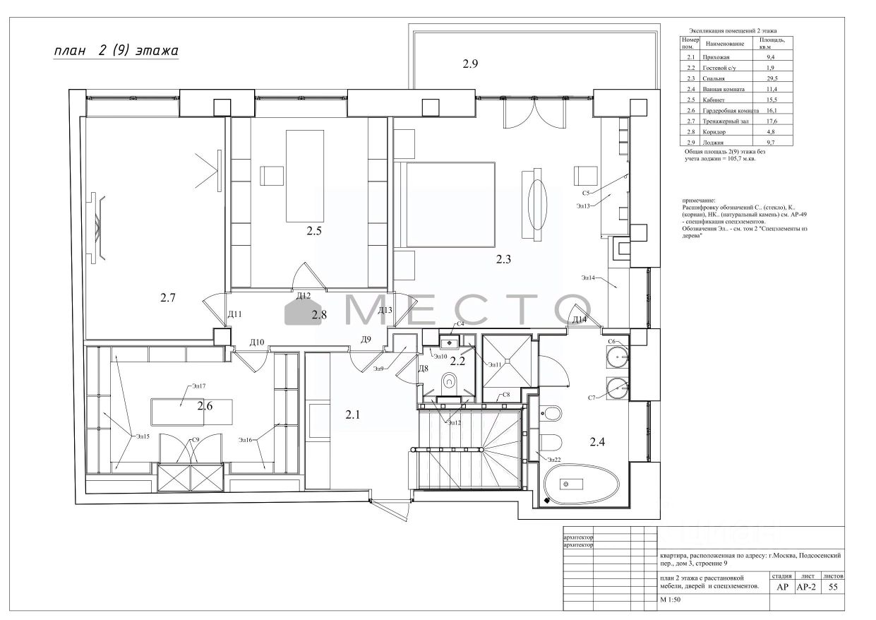
9 этаж спроектирован для родителей. Он служит местом для отдыха, работы и уединения. Мастер-спальня с выходом на лоджию и просторной ванной комнатой и душевой. Кабинет для работы. Комната отдыха. А также просторная гардеробная комната и гостевой сан.узел.
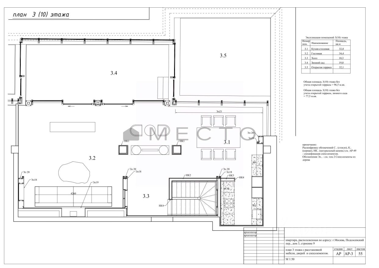
10 этаж со своим зимним садом и террасой с видом на историческую Москву. Идеальное пространство для проведения времени вместе. Здесь можно устраивать вечеринки, семейные обеды и ужины, а также просто наслаждаться общением в уютной и комфортной обстановке. Эксклюзивным преимуществом этой квартиры является терраса площадью 32,1 м2, которая может использоваться как для отдыха и наслаждения панорамой Москвы, так и для занятия спортом.
Дизайнерская мебель, натуральный камень в отделке, дерево и стекло, бытовая техника европейских производителей вместе создают стильный и современный интерьер, который подчёркивает вкус и статус владельца.
В пешей доступности - школа Покровский квартал (топ-50 школ Москвы), Высшая школа экономики, сетевые магазины, клиники, фитнес-клубы и множество различных кафе. В 10 минутах пешком зеленая прогулочная зона Чистопрудного бульвара с Чистым прудом, чуть дальше Милютинский сад. Район известен культовыми театрами - Олега Табакова и ''Современник''.
Прекрасная транспортная доступность позволяет быстро добраться до Садового кольца по Малому Казенному переулку. Также, в стоимость квартиры, входят 3 машиноместа в подземном паркинге.