сдам офисное помещение, Орджоникидзе, 11 ст401 084 708 ₽ в месяц
12 авг
Дата публикации объявления
Обн. вчера
Дата обновления объявления
21
Количество просмотров (+ просмотры за сегодня)
Топ
Спецпредложение
Выделение цветом
Турбо x2
Турбо x4
Турбо x8
2916 ₽/м² в месяц
Параметры
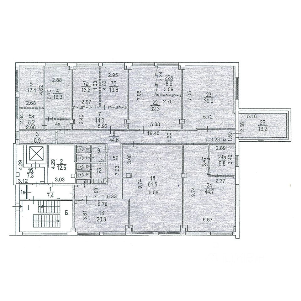
Общая площадь371,9 м2
Этаж4
Год постройки1974
Назначение помещения
для работы с клиентами
Прямая аренда от собственника! 5 минут пешком от м. Ленинский проспект и площади Гагарина. Прямо на пересечении ТТК и ул. Вавилова. Аренда офисного помещения 371,9 кв. м. 8 светлых комнат + 2 с/у + серверная (есть мокрая точка под кухню). Отдельный офис на этаже, светлый с большими окнами по всему внешнему периметру помещения. Готовая серверная. Приточно-рециркуляционная система вентиляции с подогревом и охлаждением. Коридорно-кабинетная планировка. Свои сан.узлы, кондиционеры в блоке. Мокрая точка под кухню. Потолок 3 м., стены - обои под покраску, окна - пвх, дверь - металлическая. Есть пожарная сигнализация, лифт. НДС, коммунальные услуги, сервисный сбор включены. Обеспечительный взнос за 2 месяца. Срок аренды - от 11 месяцев. Круглосуточная охрана.
Прямая аренда от собственника! 5 минут пешком от м. Ленинский проспект и площади Гагарина. Прямо на пересечении ТТК и ул. Вавилова. Аренда офисного помещения 371,9 кв. м. 8 светлых комнат + 2 с/у + серверная (есть мокрая точка под кухню). Отдельный офис на этаже, светлый с большими окнами по всему внешнему периметру помещения. Готовая серверная. Приточно-рециркуляционная система вентиляции с подогревом и охлаждением. Коридорно-кабинетная планировка. Свои сан.узлы, кондиционеры в блоке. Мокрая точка под кухню. Потолок 3 м., стены - обои под покраску, окна - пвх, дверь - металлическая. Есть пожарная сигнализация, лифт. НДС, коммунальные услуги, сервисный сбор включены. Обеспечительный взнос за 2 месяца. Срок аренды - от 11 месяцев. Круглосуточная охрана. Профессиональная Управляющая Компания. Несколько независимых провайдеров связи. Наземная охраняемая парковка на 1000 м/м. Комиссия агентствам 100%.