Если цена в объявлении изменится, мы сразу сообщим вам об этом на электронную почту.
Нажимая «Подписаться», вы соглашаетесь с правилами.
продам дом, Морозовские Усадьбы кп, 12718 900 000 ₽
4 авг 2025
Дата публикации объявления
Обн. 16 авг 2025
Дата обновления объявления
4
Количество просмотров (+ просмотры за сегодня)
63 000 ₽/м²
Чистая продажа
Термин "Чистая продажа" означает, что в квартире никто не прописан или
есть куда выписаться и вывезти вещи. Это лучший вариант для покупателя.
Вероятность срыва сделки минимальна.
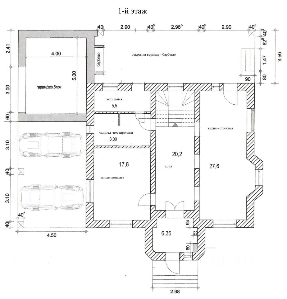
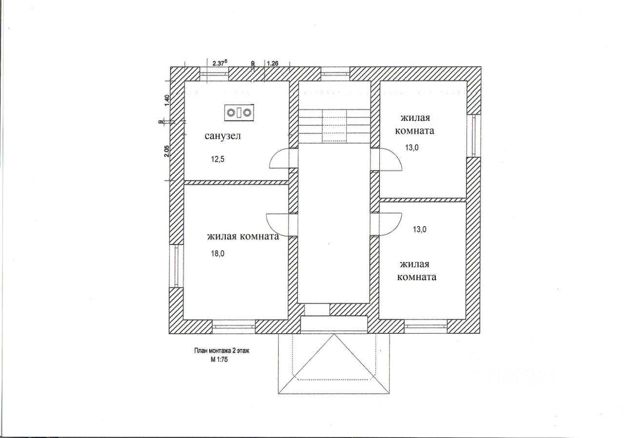
Этажей3
Площадь участка14 соток
Общая площадь300 м2
Материал домакирпич
ЭлектричествоЕсть
Газоснабжениенет
КП Морозовские усадьбы, новый жилой дом 300 кв.м., адрес присвоен - прописка разрешена. Конструктив - пеноблок/кирпич, фундамент ленточный, основание - монолитная плита. 4 жилые комнаты, 2 с/узла (в с/у на 2-ом этаже возможно размещение сауны), кухня-гостиная с выходом на открытую веранду с зоной барбекю, мансардный этаж свободная планировка, гараж 1 м/м. Коммуникации: отопление/гор. вода - электрокотел, водоснабжение и канализование центральные поселковые. Газ в перспективе, замена котла предусмотрена, в доме выполнен дымоход и вент. короб. Теплые полы выполнены в помещениях под плиткой, использованы качественные оборудование и материалы (KERMI, REHAU), натяжные потолки ткань Descor. Участок 14 соток, часть участка лесные деревья.
КП Морозовские усадьбы, новый жилой дом 300 кв.м., адрес присвоен - прописка разрешена. Конструктив - пеноблок/кирпич, фундамент ленточный, основание - монолитная плита. 4 жилые комнаты, 2 с/узла (в с/у на 2-ом этаже возможно размещение сауны), кухня-гостиная с выходом на открытую веранду с зоной барбекю, мансардный этаж свободная планировка, гараж 1 м/м. Коммуникации: отопление/гор. вода - электрокотел, водоснабжение и канализование центральные поселковые. Газ в перспективе, замена котла предусмотрена, в доме выполнен дымоход и вент. короб. Теплые полы выполнены в помещениях под плиткой, использованы качественные оборудование и материалы (KERMI, REHAU), натяжные потолки ткань Descor. Участок 14 соток, часть участка лесные деревья. Поселок полностью застроен, охраняемая территория, благоустроенный асфальтовые дороги, широкие проезды, детские и спортивные площадки, зоны общего пользования, магазин всегда свежие фермерские продукты. Соседи проживают круглогодично. В ближайшей доступности центры активного спорта и отдыха: горнолыжные и спортивные парки, аэроклуб, стрелковый клуб, картодром, развлекательные площадки, Икшинское водохранилище с благоустроенными зонами отдыха, купания, рыбалки. Транспортная доступность: 47 км от МКАД, ж.-д. ст. Морозки 10 мин. транспортом, удобный выезд на ЦКАД. Свободная продажа. 1 взр. собственник. ПОЗВОНИТЕ, пришлем ссылку на видео, размещенное в RUTUBE. Сообщения не доходят.