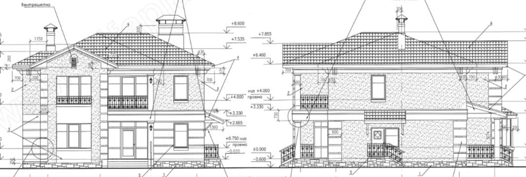
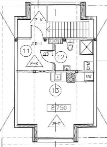
Дом построен на роскошном лесном участке с природным ландшафтом. Дом монолитный с керамической черепицей и качественными стеклопакетами. Также на территории участка отдельным строением расположен гараж, площадью 126,5 кв.м., на две машины с небольшой квартирой для персонала на втором этаже. Дом и гараж требуют полной внутренней и частичной внешней отделки. Имеется полный проект строений, разработанный архитектурной компанией. Также имеется полный дизайн-проект внутренней отделки и меблировки. Участок образован путем слияния трех участков с отдельными кадастровыми номерами.
Один собственник с 2010 года.



































