ID: 197846
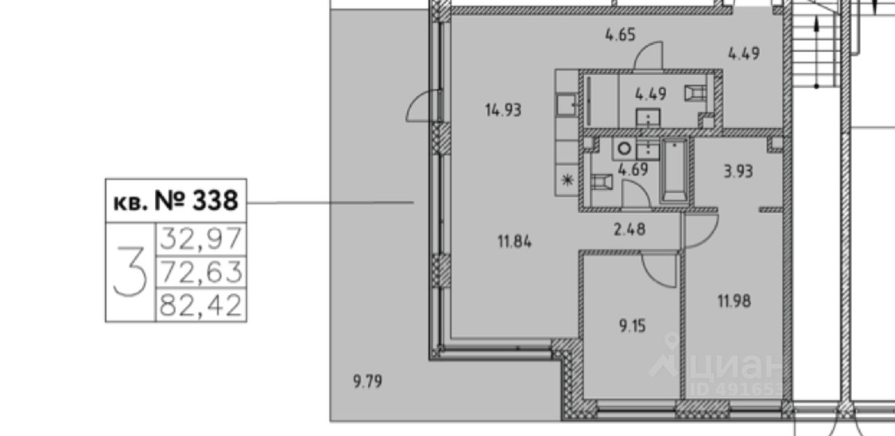
Продается квартира с отделкой под ключ в новом жилом комплексе WOW. Квартира находится на 1 этаже, имеет эксклюзивные потолки 5 метров и собственное патио, которые выходит в тихий двор.
Отделка под ключ от застройщика в стиле ''Sand''.
Сейчас в доме активно идет выдача ключей.
Особенность данной секции - все квартиры по умолчанию предлагались с отделкой под ключ, поэтому шумные работы будут в минимальном количестве.



















