Прописка. Продается шикарный просторный абсолютно новый дом в стиле Старая Америка, со всеми коммуникациями для круглогодичного проживания, в данный момент в доме ведутся финишные работы. если есть предпочтения по цветовой гамме, можем сделать все под покупателя.
Толщина стен 200х200 +утеплитель 200, а так же теплый пол.
О доме..
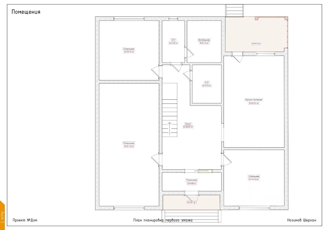
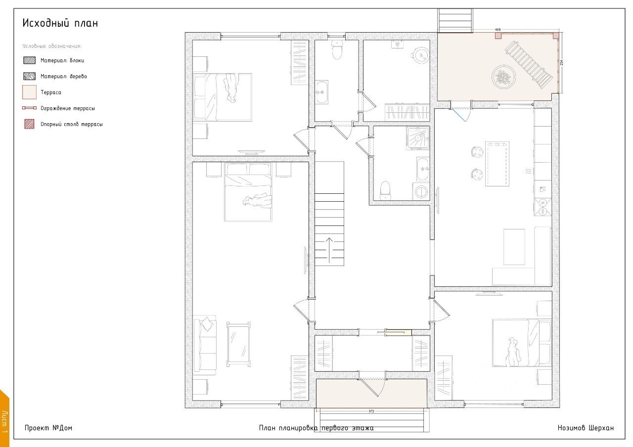
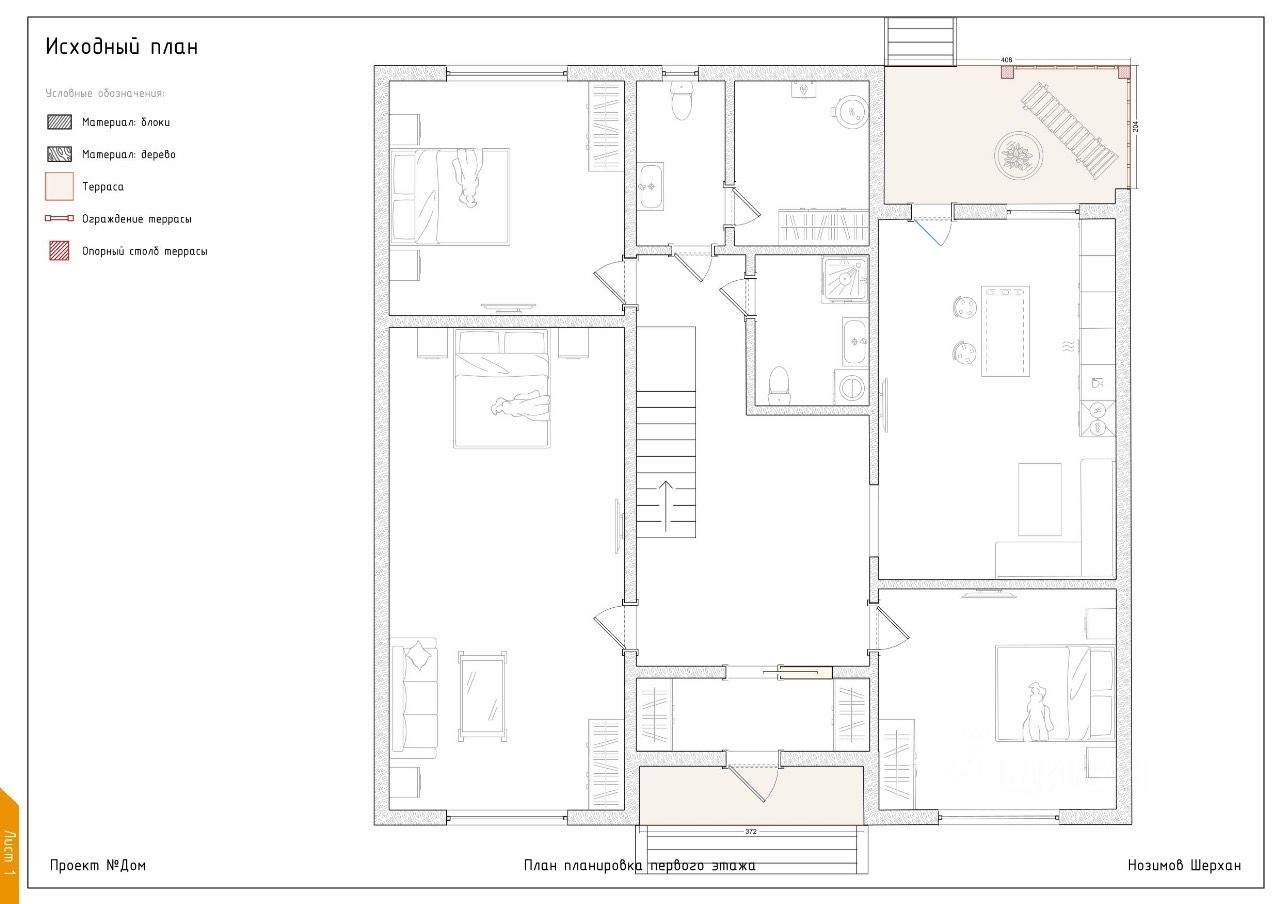
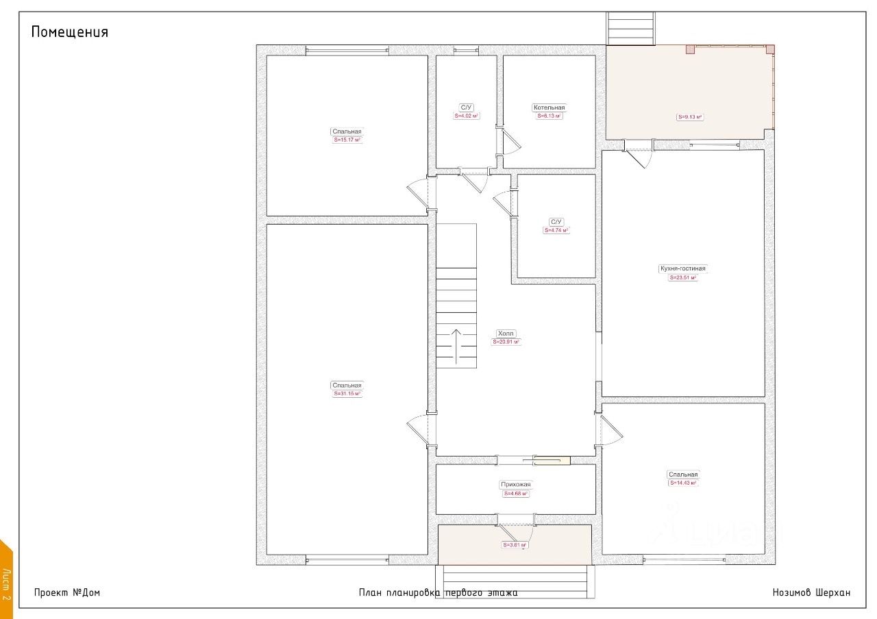
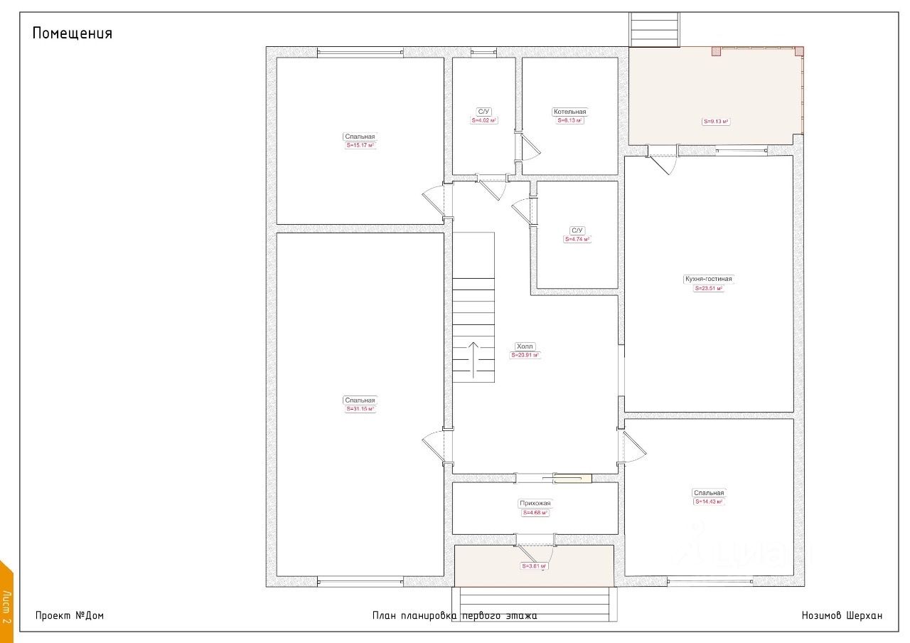
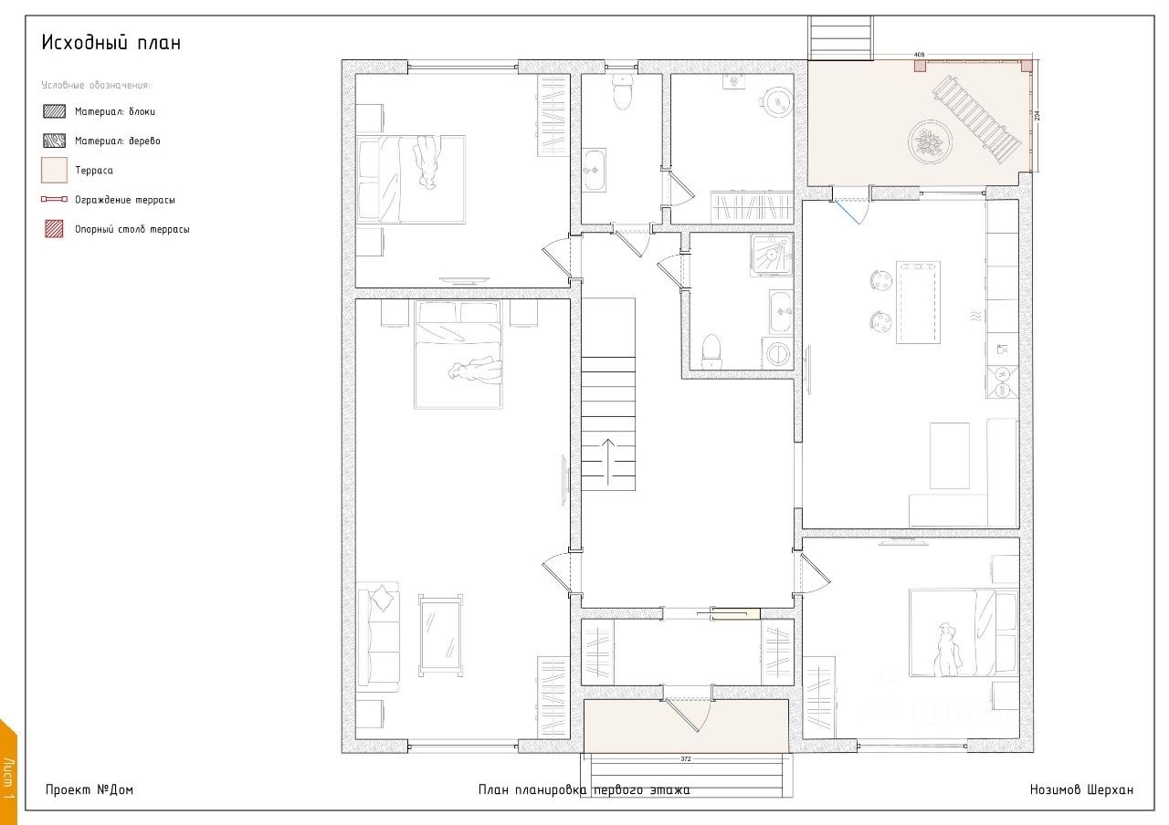
первый этаж: просторный холл, кухня-гостиная-терраса, три комнаты , 2 сан/узел, котельная.
второй этаж: мансарда 12 на 12 будет обустроена под домашний кинотеатр.
Об участке..
Участок 7 соток, ровный, сухой. размеры 20х34.
к/н 50:23:0040530:306
Коммуникации..
Эл-во - 15 кв
Вода - скважина
Канализация - био станция
Есть фото всех этапов строительства.













