Термин "Чистая продажа" означает, что в квартире никто не прописан или
есть куда выписаться и вывезти вещи. Это лучший вариант для покупателя.
Вероятность срыва сделки минимальна.
Этажей3
Площадь участка2,1 сотки
Общая площадь203 м2
ЭлектричествоЕсть
Газоснабжениецентральное
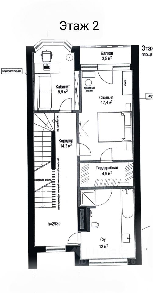
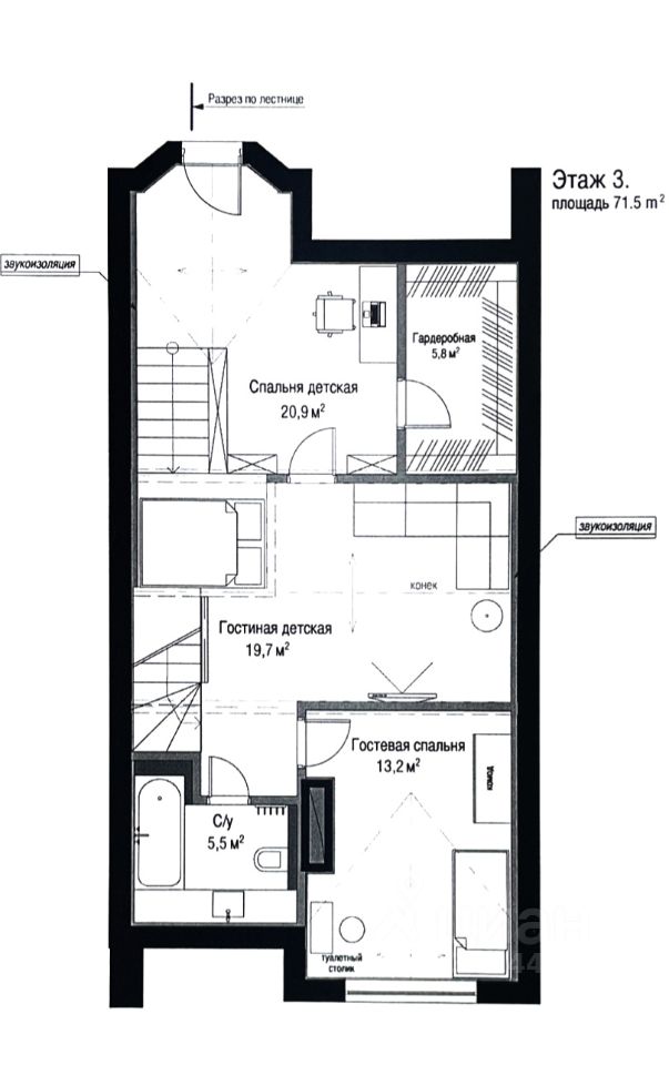
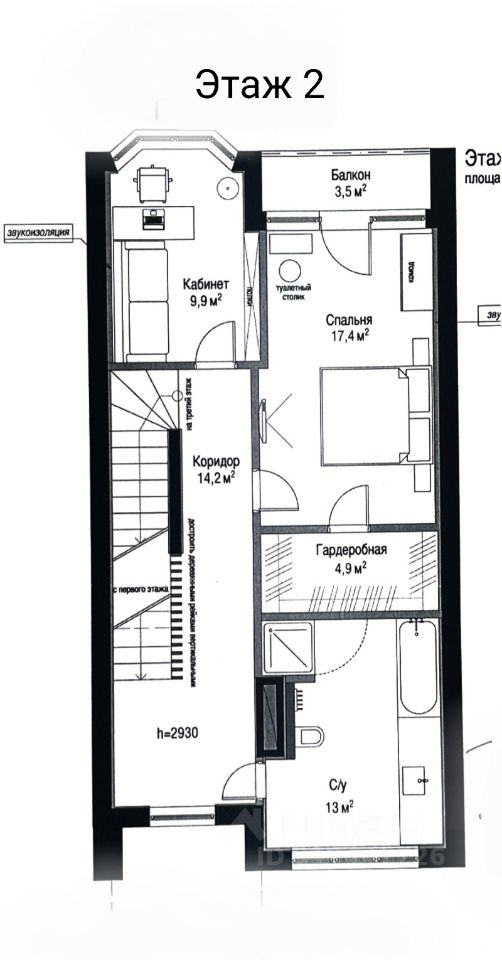
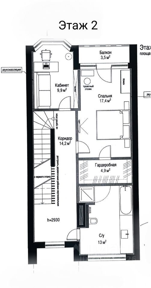
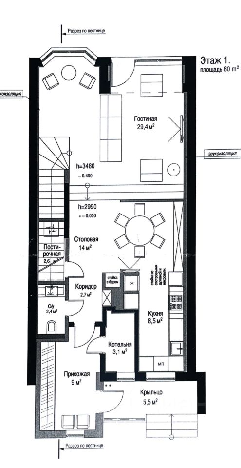
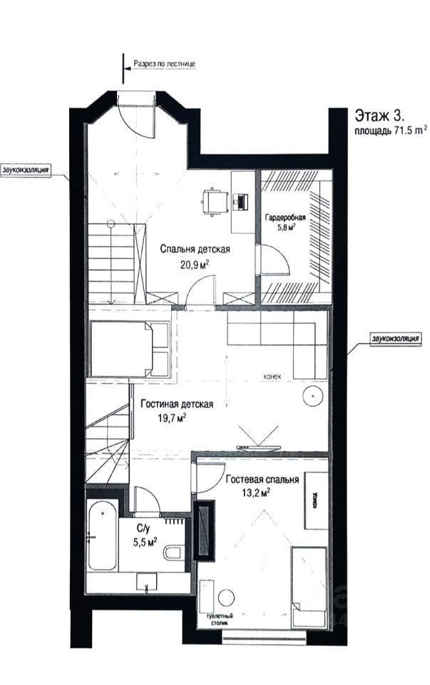
Предлагается к продаже ОСОБЕННЫЙ 3-этажный таунхаус 203м² в премиальном коттеджном поселке ''Дубровка'' с собственным земельным участком. Готовьтесь влюбиться! 203 квадрата свободы! 3 этажа, где каждый найдет свой уголок счастья: 1 этаж: ''Сердце'' дома кухня-гостиная 30 м²+ кухня-столовая 22 м² с выходом на террасу и свой зеленый дворик для семьи, друзей, гостей без тесноты! Также на этаже просторная прихожая, гостевой санузел, прачечная, бойлерная. 2 этаж: Просторная спальня с выходом на лоджию с прекрасными видами, с гардеробной, вторая спальня или кабинет, санузел. 3 этаж: зонированная спальня с гардеробной, вторая спальня, гостиная и санузел. Дом с центральными коммуникациями: Тепло, свет, вода как в центре города, но воздух как в Альпах!
Предлагается к продаже ОСОБЕННЫЙ 3-этажный таунхаус 203м² в премиальном коттеджном поселке ''Дубровка'' с собственным земельным участком. Готовьтесь влюбиться! 203 квадрата свободы! 3 этажа, где каждый найдет свой уголок счастья: 1 этаж: ''Сердце'' дома кухня-гостиная 30 м²+ кухня-столовая 22 м² с выходом на террасу и свой зеленый дворик для семьи, друзей, гостей без тесноты! Также на этаже просторная прихожая, гостевой санузел, прачечная, бойлерная. 2 этаж: Просторная спальня с выходом на лоджию с прекрасными видами, с гардеробной, вторая спальня или кабинет, санузел. 3 этаж: зонированная спальня с гардеробной, вторая спальня, гостиная и санузел. Дом с центральными коммуникациями: Тепло, свет, вода как в центре города, но воздух как в Альпах! Отделку в доме можно обновить и создать пространство мечты! Все коммуникации в идеальном состоянии. Собственная парковка с навесом на 2 м/м. Таунхаус расположен на тихой, тупиковой улице, а рядом замечательные соседи. В коттеджном поселке жизнь организована ''под ключ'' : Кафе с утренним кофе и круассаном, аптека, супермаркеты, спорткомплекс с бассейном, детский сад, детские площадки, а еще прекрасный парк и пруд - всё в 5 минутах неспешной прогулки! Метро - 10 минут пешком. Для автомобилистов удобный выезд на скоростное Калужское шоссе (5 км до МКАД). ВАШ ЛИЧНЫЙ ОАЗИС БЕЗОПАСНОСТИ: Закрытый поселок с охраной 24/7, видеокамерами и ухоженной территорией, а также отличными соседями. Это инвестиция в ваш покой, статус и будущее семьи. Торг только для решительных! ВНИМАНИЕ: Такое сочетание метро + природа + простор + безопасность большая редкость! Приезжайте и почувствуйте, как сердце скажет: ''ДА, ЭТО МОЁ!''