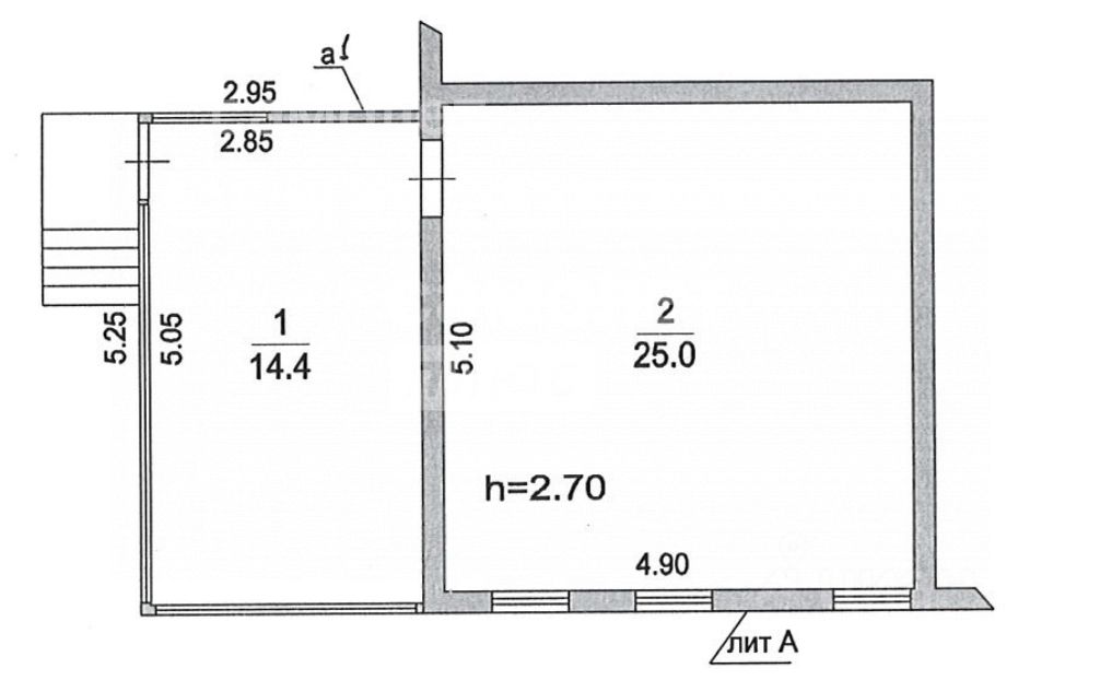
Московская прописка! Продаю участок ЛПХ 419 кв.м., с выделенной внатуре комнатой 25м2 с террасой 14,4 м2 в индивидуальном жилом доме.
Комната жилая, с пропиской, отдельный вход, терраса, требуется реконструкция. Электричество. Участок 419 кв.м. в индивидуальной собственности. Часть дома оформлена и выделена внатуре по документам как комната 25 кв.м., уборная также зарегистрирована.
Деревня жилая, живописная. До деревни ходит автобус от станции метро ''Теплый Стан'' и автобус от станции Подольск. Подъезд к участку асфальтированная дорога. Около дома детская и спортивная площадки.
Показы по предварительной договоренности. Готовы ответить на Ваши вопросы, ежедневно с 10.00 до 21.00. Специалист по недвижимости: Елена.
Арт. 69424210






























