сдам офисное помещение, Обручева, 23 ст11 572 499 ₽ в месяц
1 июля
Дата публикации объявления
Обн. 29 ноя
Дата обновления объявления
3084 ₽/м² в месяц
Параметры
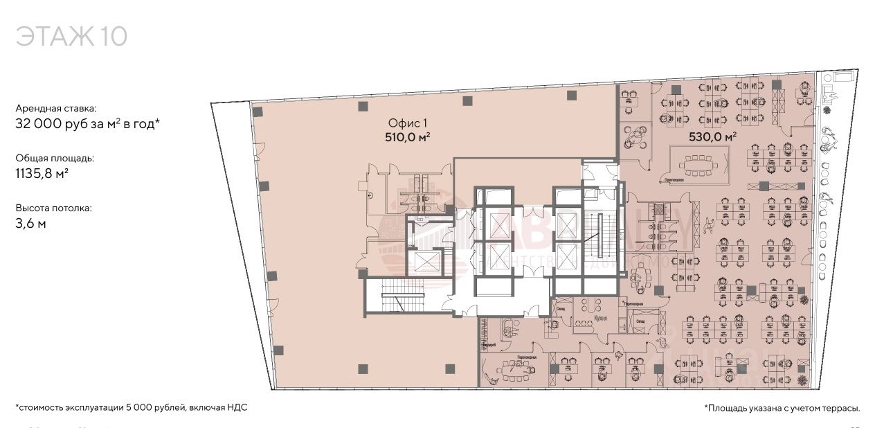
Общая площадь510 м2
Этаж10
Год постройки2023
БЕЗ КОМИССИИ! Аренда от собственника!
В новом концептуальном БЦ Геолог на юго-западе Москвы сдаются в долгосрочную аренду площади без отделки от 50 кв.м. Оригинальный дизайн БЦ высота здания 59 м. Класс А. 5 минут пешком от м. Калужская!
10 этаж офисы 500-1135 кв.м. Панорамный высокий этаж с видовыми террасами! Высота потолка 3,6 м! Возможен ремонт под арендатора подрядной организацией БЦ.
3 этаж целиком 985 кв.м - возможно выделение нескольких юр. адресов и сдача в субаренду.
12-13 этажи 500-2110 кв.м - видовые этажи с потолками 6 м и антресолями с увеличением площади до 40%.
- Витражное остекление Alutech с открыванием - Нагрузка на перекрытия 450 кг/кв.
БЕЗ КОМИССИИ! Аренда от собственника!
В новом концептуальном БЦ Геолог на юго-западе Москвы сдаются в долгосрочную аренду площади без отделки от 50 кв.м. Оригинальный дизайн БЦ высота здания 59 м. Класс А. 5 минут пешком от м. Калужская!
10 этаж офисы 500-1135 кв.м. Панорамный высокий этаж с видовыми террасами! Высота потолка 3,6 м! Возможен ремонт под арендатора подрядной организацией БЦ.
3 этаж целиком 985 кв.м - возможно выделение нескольких юр. адресов и сдача в субаренду.
12-13 этажи 500-2110 кв.м - видовые этажи с потолками 6 м и антресолями с увеличением площади до 40%.
- Витражное остекление Alutech с открыванием - Нагрузка на перекрытия 450 кг/кв.м - Провайдеры: Ростелеком, Телкомнэт - Современные инженерные коммуникации - Центральные системы приточно-вытяжной вентиляции и кондиционирования - 4 пассажирских лифта Kleemann и 1 грузовой - Двухуровневый подземный паркинг на 88 м/м - Гостевой наземный паркинг Локация: 500 м от ст. Воронцовская и м. Калужская, 6 км от МКАД, 7 км ТТК.
Прямой договор с собственником от 3-х лет! БЕЗ скрытых платежей и комиссий! Арендные ставки указаны с НДС и эксплуатацией. Предоставляется юридический адрес. Согласуем длительные арендные каникулы! Звоните и записывайтесь на просмотр!