сдам складское помещение, Дубнинская, 75 ст11 199 312 ₽ в месяц
28 июня 2025
Дата публикации объявления
Обн. 26 мар
Дата обновления объявления
7
Количество просмотров (+ просмотры за сегодня)
1840 ₽/м² в месяц
Параметры
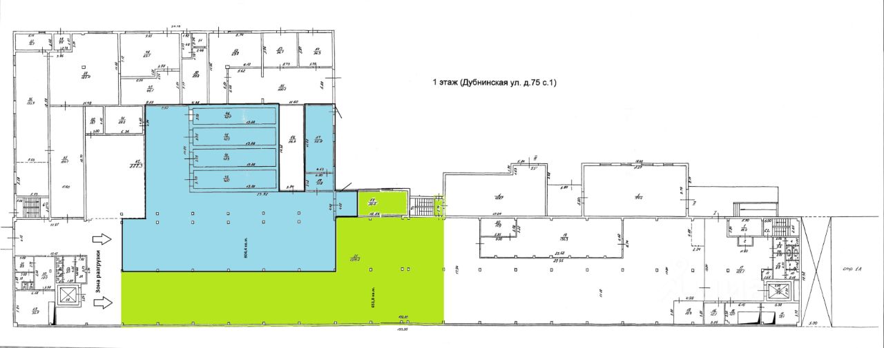
Общая площадь651,8 м2
Этаж1
Год постройки1984
Назначение помещения
склады, хранение товаров
Сдается помещение на 1 этаже, общей площадью 651,8 кв.м. на территории офисно-производственного комплекса.
- централизованное отопление, водоснабжение, электричество 80 кВт. (возможно увеличение) - высота потолков 4,25 м.
Сдается помещение на 1 этаже, общей площадью 651,8 кв.м. на территории офисно-производственного комплекса.
- централизованное отопление, водоснабжение, электричество 80 кВт. (возможно увеличение) - высота потолков 4,25 м., - имеется комната для бухгалтерии, директора - въезд грузового автотранспорта в само помещение для разгрузки и выгрузки Транспортная доступность: - Метро Яхромская (12 мин пeшкoм), МЦД: Бecкудникoво, Лиaнозoвo, - Удобный выезд на Дмитровское шоссе, Инфраструктура комплекса: - Пропускная система, ЧОП, - Видеонаблюдение, - Парковка внутри комплекса (платно), - Муниципальная парковка, - Столовая, - Торговый автомат с напитками в офисном здании на территории, - Юр адрес предоставляется дополнительно.
Прямой договор с собственником!
Помещение подойдет под склад, производство или мастерскую, есть возможность подъезда грузового транспорта на территорию