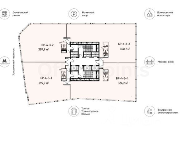
Продается офисное помещение на 4 этаже в БЦ Башня Рябов, А класса, который находится по адресу: Холодильный пер., д. 3, к. 1.
Пешая доступность от станций метро Тульская, Шаболовская и Серпуховская. Удобное расположение бизнес-центра вблизи ТТК, площади Серпуховская застава, Подольского шоссе, Даниловской набережной и Автозаводского моста, а также улицы Большая Тульская.
Помещение без отделки, открытая планировка. Приточно-вытяжная система вентиляции, центральное кондиционирование. Подземная парковка на 150 м/мест.
Условия сделки и стоимость подлежат обсуждению.









